OPEN HOUSE
Prime Glenbrooke bungalow on an extra large 53x132 lot w/incredible potential! Perfect for young families or savvy investors seeking development opportunities. This well-maintained home features arched doorways, fir flooring & updated systems incl: 2017 roof, 2022 tankless hot water & 2015 furnace/plumbing upgrades. Relax on the stamped concrete patio overlooking lovely established gardens, or envision your future project on this generous lot. Dbl garage w/lane access adds convenience & value. Located in family-friendly Glenbrooke, steps from Terry Hughes Park, rec centres, shopping & vibrant local restaurants & cafes. Whether you're raising a family or holding for future development, this property delivers on all! Open House Sun, Nov 29th 2:30-4pm
Open houses
29 Nov, 2025 (02:30 PM to 04:00 PM)
General Info
Property Metrics
Additional Details
Heating & Cooling
Utilities
Parking
🔒 Join or Sign In • Real estate boards need a verified account to see Property data
Property History
🔒 Join or Sign In • Real estate boards need a verified account to see Property data
| Status | Date | Price |
|---|
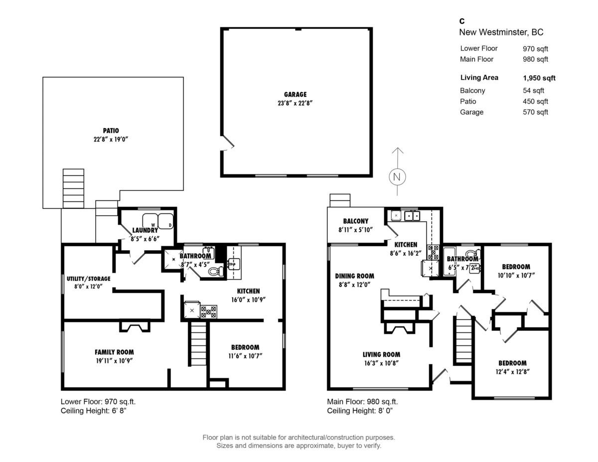
Rooms
| Floor | Type | Dimensions |
|---|---|---|
| Main Level | Primary Bedroom | 12'4 x 12'4 ft |
| Main Level | Living Room | 16'3 x 16'3 ft |
| Main Level | Dining Room | 8'8 x 8'8 ft |
| Main Level | Kitchen | 8'6 x 8'6 ft |
| Main Level | Bedroom | 10'10 x 10'10 ft |
| Basement Level | Family Room | 19'11 x 19'11 ft |
| Basement Level | Bedroom | 11'6 x 11'6 ft |
| Basement Level | Kitchen | 16'0 x 16'0 ft |
| Basement Level | Storage | 8'0 x 8'0 ft |
| Basement Level | Laundry | 8'5 x 8'5 ft |
Bathrooms
| Floor | Ensuite | Pieces |
|---|---|---|
| Main Level | No | #3 |
| Basement | No | #3 |
NOTE: This representation is based in whole or in part on data generated by the Chilliwack & District Real Estate Board, Fraser Valley Real Estate Board or Greater Vancouver REALTORS® which assumes no responsibility for its accuracy.
Public Schools
Information includes BC Government Open License data; school details change often and are offered solely as general guidance.
Private Schools
Closest Transit
Noise/ Power Lines
Other
Welcome to 113 Eighth Avenue, New Westminster, BC - a vibrant and convenient community nestled in the heart of British Columbia!
As we step into this charming neighborhood, you'll discover a haven that offers the perfect balance of tranquility and urban convenience. Let's take a stroll around and explore what makes this area so special.
Education: A Strong Foundation for Families
We're proud to say that this community is served by Herbert Spencer Elementary School, a reputable institution with a rating of 6.6/10. Located just 0.38 km from your new home, MLS®R3051950, this school provides an excellent education for your little ones. If you're looking for alternative options, John Knox Christian School is just 0.73 km away, boasting a fantastic rating of 9.2/10.
Safety and Security: A Peace of Mind
According to the latest statistics from Statistics Canada (2020), our neighborhood has an average crime rate of 6,761.11, placing it in the average category compared to other Canadian cities. With a focus on community policing and a strong sense of neighborhood watch, you can rest assured that you and your loved ones are safe and secure. The nearest bus station, Eastbound 8th Ave @ 2nd St, is just 0.07 km away, offering convenient transportation options.
Demographics: A Thriving Community
This neighborhood is home to a diverse population with a high percentage of university-educated residents (31.3%), well above the average in BC. With a median household income of $74,176, you'll find a strong sense of community and a diverse range of professionals and families calling this area home. The unemployment rate is a low 4.1%, making it an attractive option for those looking for job opportunities.
Lifestyle Amenities: Enjoy the Best of Both Worlds
Imagine being just a short stroll away from beautiful parks, beaches, and trails, where you can connect with nature and stay active. Our neighborhood boasts an impressive 3705.6 people per square kilometre, ensuring a lively and engaging community atmosphere. With a range of shopping malls, grocery stores, restaurants, and coffee shops nearby, you'll have everything you need to enjoy a comfortable and convenient lifestyle.
Real Estate Context: A Prime Investment Opportunity
The average value of dwellings in this neighborhood is a substantial $1,003,460, making it a prime investment opportunity for those looking to purchase a property. With a high percentage of homeowners (64.2%), you'll find a strong sense of community and a stable property market. Average owner payments are $1,795 per month, while tenants pay $823, making it an attractive option for investors.
Let's Explore Further:
Welcome to 113 Eighth Avenue, New Westminster, BC - a community that truly has something for everyone. Whether you're a first-time buyer, a growing family, or an investor, this property with MLS®R3051950 is an excellent choice. Contact me today to schedule a viewing and make this vibrant neighborhood your home!
Price Evaluation Chart
Listing Price Comparision
No comparables
Potential Cashback for this listing if you buy with us
Login to track your cashback progress
Sign up on Estateblock.com
$454 / 5%Use the “Hot Deal” module on our website
$181 / 2%Sign up for our Newsletter
$91 / 1%Create a saved search on Estateblock.com
$181 / 2%Book a Property Showing with us
$181 / 2%Get a mortgage through our recommended broker
$635 / 7%Use our recommended insurance provider
$181 / 2%Use our recommended notary for closing
$181 / 2%Sign an Exclusive Buyer’s Agency Agreement with us
$635 / 7%Share Estateblock.com on social media with a short intro
$272 / 3%Refer a friend who successfully buys or sells with us
$2,269 / 25%Sell your home with us2
$2,269 / 25%Leave a Public Review in Google
$635 / 7%Follow us on Insta or FB and tag us in a post
$272 / 3%Create a short video testimonial after closing
$272 / 3%Leave a Facebook review on our page
$181 / 2%Talk with one of our mortgage brokers
$181 / 2%🔒 Join or Sign In • Real estate boards need a verified account to see photos & sold data