11533 Wilson St, Mission, BC, MLS® R3069287

$1,299,900
Est. Mortgage /mo

NEW 107.71% cheaper than comparables

$1,299,900
Est. Mortgage /mo
Dan Marusin
Dan Marusin
Renanza Realty
778-918-5990
Award-Winning REALTOR® with 11+ Years of Experience Serving Greater Vancouver
Go See This Home Now
0 Stories
lot 304484 sqft
0 sqft
Show more info
Photos
Map
Street view
Schools
Crime
Commute
Shop & Eat

11533 Wilson St, Mission, BC | MLS® R3069287 Property Details

107.71% cheaper than comparables

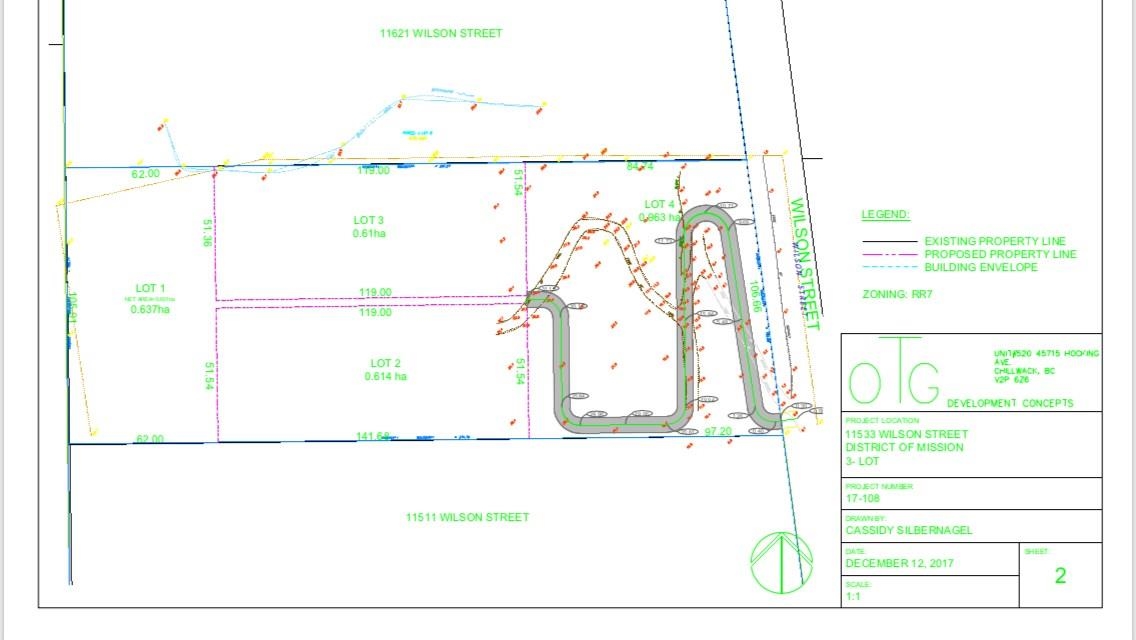
This is a 6.99 acre sub dividable piece of land that could be developed into 2, 3 or 4 parcels of minimum 1.73 acres with zoning change to RR7 or RR7s. This is raw piece of land with driveway roughed in. Basically cleared for you to begin the subdivision or building process. Backs onto managed forest land. Located roughly half way between Dewdney Trunk Road & Lougheed Hwy on the Mission Maple Ridge border. This is beautiful piece of land if you are looking for a development project or looking for the perfect private parcel to build your oasis. This property has some of the most incredible sunrises in the early mornings.

General Info

Price $1,299,900
Total Bedrooms -
Total Bathrooms -
Half Bathrooms -
Floor Area Total (sqft) -
Lot Size 6.99
Lot Size Depth Feet
Lot Size Frontage 352
Basement Features BasementFeatures

Property Metrics

Year Built -
Age Of Building -
Building Type -
Property Type Land
Stories -
Building Features BuildingFeatures
Structures Land Only

Additional Details

MLS® # R3069287
Area Mission
Neighbourhood Mission-West
City Mission
Gross Taxes $4,649
Ownership Type Freehold NonStrata
Maintenance Fee -
Fixtures Included -

Heating & Cooling

Fireplace -

Utilities

Utility Type Sanitary Sewer Not Available, Storm Sewer Not Available, Electricity Not Available, Natural Gas Nearby, Phone Nearby, Cable Available
Water (WaterSource) None

Parking

Total Parking Spaces -

🔒 Join or Sign In • Real estate boards need a verified account to see Property data

Strata Restrictions -
Rental Restrictions -
Zoning RU-16
Rental Suites -
# of Kitchens -
Locker -
View 1
View Description Mountains
Units In Development -

Property History

🔒 Join or Sign In • Real estate boards need a verified account to see Property data

Status Date Price

Listed by: Royal LePage Little Oak Realty

NOTE: This representation is based in whole or in part on data generated by the Chilliwack & District Real Estate Board, Fraser Valley Real Estate Board or Greater Vancouver REALTORS® which assumes no responsibility for its accuracy.

Neighborhood Info

Private Schools

Elementary, Secondary
Valley Christian School
8.33 km
Elementary, Secondary
Valley Christian School
8.33 km

Closest Transit

Bus Stop
Southbound 284 St @ 11900 Block (Flag)
2.17 km
Skytrain
West Coast Express @ Mission City Station
11.46 km

Noise/ Power Lines

Road/Hwy Noise
Possible
Railway/Sky train Noise
Unlikely
Airport/Port Noise
Unlikely
Close to major Power Lines
Unlikely

Other

Agricultural Land Reserve (ALR)
Unlikely
Flood Area
Unlikely
Close to Cemeteries
Unlikely

Local Info

Calculate your monthly mortgage payments

/month
Principal & Interest
Property Taxes $202
Maintenance fee 0
All figures are informational estimates by Estateblock.com; actual mortgage payments and insurance rates vary by many factors.

Cash Flow Analysis

/month
Mortgage Payment $3201
Monthly Payment $3802
Break Even Down Payment 0%
All figures are informational estimates by Estateblock.com; actual mortgage payments and insurance rates vary by many factors.

Price Evaluation Chart

Filter
Beds Home Types Square Feet Lot Size Year Built
This Home $1,299,900
Mission $2,974,600
Mission-West $4,000,000
Data is based on list prices of similar active listings. This representation is based in whole or in part on data generated by the Chilliwack & District Real Estate Board, Fraser Valley Real Estate Board or Real Estate Board of Greater Vancouver which assumes no responsibility for its accuracy

Listing Price Comparision

This house $1,400,000
Surrey

No comparables

Fleetwood Tynehead $1,399,000 -6.38%
Data is based on list prices of similar active listings. This representation is based in whole or in part on data generated by the Chilliwack & District Real Estate Board, Fraser Valley Real Estate Board or Real Estate Board of Greater Vancouver which assumes no responsibility for its accuracy
Dan Marusin
Dan Marusin
Renanza Realty
778-918-5990
Award-Winning REALTOR® with 11+ Years of Experience Serving Greater Vancouver

Earn Cashback

Potential Cashback for this listing if you buy with us

$0
out of $8,499
0 of 17 missions
(0.0% out of 100%)

Login to track your cashback progress

Sign up on Estateblock.com

$425 / 5%

Use the “Hot Deal” module on our website

$170 / 2%

Sign up for our Newsletter

$85 / 1%

Create a saved search on Estateblock.com

$170 / 2%

Book a Property Showing with us

$170 / 2%

Get a mortgage through our recommended broker

$595 / 7%

Use our recommended insurance provider

$170 / 2%

Use our recommended notary for closing

$170 / 2%

Sign an Exclusive Buyer’s Agency Agreement with us

$595 / 7%

Share Estateblock.com on social media with a short intro

$255 / 3%

Refer a friend who successfully buys or sells with us

$2,125 / 25%

Sell your home with us2

$2,125 / 25%

Leave a Public Review in Google

$595 / 7%

Follow us on Insta or FB and tag us in a post

$255 / 3%

Create a short video testimonial after closing

$255 / 3%

Leave a Facebook review on our page

$170 / 2%

Talk with one of our mortgage brokers

$170 / 2%

Book a tour

Please complete the form. We will the arrangements and give you a call, typically within 1-2 hours. Or Call Us 778-918-5990
Thank you Your message has been sent
Go See This Home Now