1577 E 26th Ave, Vancouver, BC, MLS® R2996271

$1,298,000
Est. Mortgage /mo

Foreclosures, 10.4% price reduction

$1,298,000
$1,448,000
Est. Mortgage /mo
Dan Marusin
Dan Marusin
Renanza Realty
778-918-5990
Award-Winning REALTOR® with 11+ Years of Experience Serving Greater Vancouver
Go See This Home Now
7 Beds
2 Baths
2 Stories
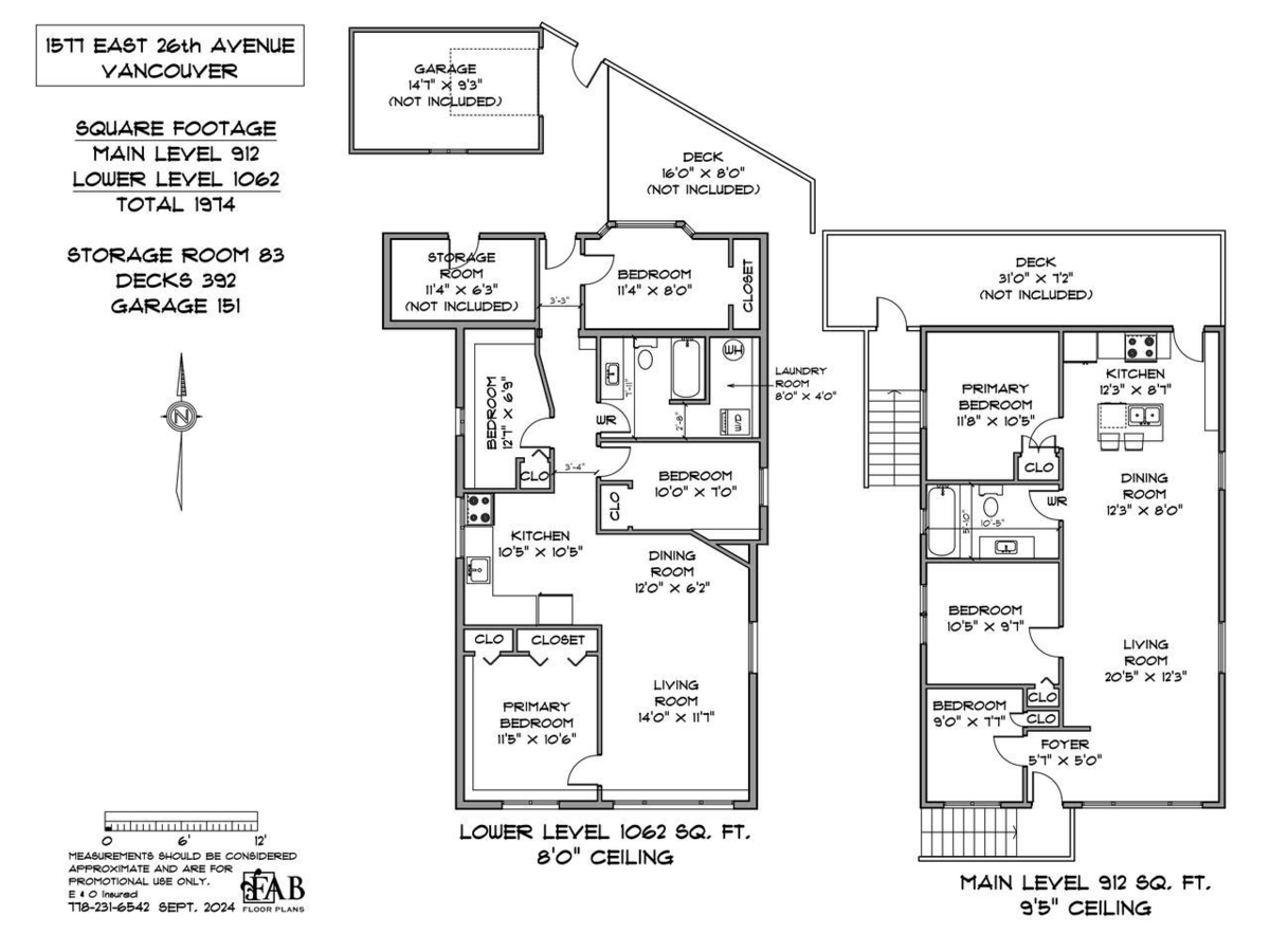
lot 2491 sqft
1974 sqft
1910 built
Show more info
Photos
Map
Street view
Schools
Crime
Commute
Shop & Eat

1577 E 26th Ave, Vancouver, BC | MLS® R2996271 Property Details

Foreclosures
10.4% price reduction

Court-ordered foreclosure sale in a prime East Vancouver location. This property features a main floor with three bedrooms and a four-piece bathroom, and a fully self-contained lower level with a private entrance, four-bedroom suite currently operating as an Airbnb, garage, and storage. Laser floorplans and a virtual tour are available. Ideally situated near Save-On Foods, the Vancouver Public Library, fitness centers, transit, and Kingcrest Park. Located within the sought-after catchment areas of Lord Selkirk Elementary and Gladstone High School. Not sure how the foreclosure process works? It’s straightforward—feel free to call me with any questions. Thanks Luke

General Info

Price $1,298,000
Total Bedrooms 7
Total Bathrooms 2
Half Bathrooms 0
Floor Area Total (sqft) 1974
Lot Size 2491
Lot Size Depth Feet
Lot Size Frontage 0
Basement Crawl Space
Basement Features BasementFeatures

Property Metrics

Year Built 1910
Age Of Building 115
Building Type Single Family Residence
Property Type Residential
Architecture Style Rancher/Bungalow
Stories 2
Building Features BuildingFeatures
Structures Residential Detached

Additional Details

MLS® # R2996271
Area Vancouver East
Neighbourhood Knight
City Vancouver
Gross Taxes $7,126.95
Ownership Type Freehold NonStrata
Maintenance Fee -
Community Features Shopping Nearby
Fixtures Included 1

Heating & Cooling

Fireplace 1
Heating Type Baseboard, Electric

Utilities

Utility Type Electricity Connected, Water Connected
Utility Sewer Public Sewer, Sanitary Sewer, Storm Sewer
Water (WaterSource) Public

Parking

Parking Type Additional Parking, Carport Single, Front Access, Rear Access, Asphalt
Total Parking Spaces 1

🔒 Join or Sign In • Real estate boards need a verified account to see Property data

Strata Restrictions -
Rental Restrictions -
Zoning RS1
Rental Suites Licensed Suite
Laundry In Unit
# of Kitchens 2
Flooring Mixed, Wall/Wall/Mixed
Foundation Concrete Perimeter
Interior Features Guest Suite, Storage
Locker -
View Description -
Units In Development -
Exterior Features Private Yard
Sewer Public Sewer, Sanitary Sewer, Storm Sewer
Roof Asphalt

Property History

🔒 Join or Sign In • Real estate boards need a verified account to see Property data

Status Date Price
Show more

Listed by: RE/MAX LIFESTYLES REALTY

NOTE: This representation is based in whole or in part on data generated by the Chilliwack & District Real Estate Board, Fraser Valley Real Estate Board or Greater Vancouver REALTORS® which assumes no responsibility for its accuracy.

Neighborhood Info

Public Schools

Secondary
Gladstone Secondary School
0.8 km
Elementary
Lord Selkirk Elementary School
0.33 km
Elementary
Lord Selkirk Annex
0.31 km

Information includes BC Government Open License data; school details change often and are offered solely as general guidance.

Private Schools

Elementary
St.Joseph's School
0.88 km
Elementary, Secondary
Stratford Hall School
1.08 km

Closest Transit

Bus Stop
Westbound E King Edward Ave @ Kingsway
0.07 km
Skytrain
Skytrain @ Nanaimo Stn
1.17 km

Noise/ Power Lines

Road/Hwy Noise
Possible
Railway/Sky train Noise
Unlikely
Airport/Port Noise
Unlikely
Close to major Power Lines
Unlikely

Other

Agricultural Land Reserve (ALR)
Unlikely
Flood Area
Unlikely
Close to Cemeteries
Unlikely

1577 E 26th Avenue is serviced by Lord Selkirk Elementary School. The property with listing MLS® R2996271 is located 0.33 km from the school. Lord Selkirk Elementary School has a rating of No Rating.

This home with address 1577 E 26th Avenue, Vancouver, BC is also serviced by Gladstone Secondary School and located 0.8 km from it. Gladstone Secondary School has a rating of No Rating.

The closest Elementary independent school to this home for sale located at 1577 E 26th Avenue is St.Joseph's School with School's rating No Rating, located 0.88 km from this home.

The closest to this address 1577 E 26th Avenue Secondary independent school is Stratford Hall School with School's rating No Rating, located 1.08 km from this home

The freshest crime data from Statistics Canada are from 2020. There were 52,217 volation disturbances in this neighbourhood. The overall crime rate near the address - 1577 E 26th Avenue, Vancouver, BC is 7,470.82. Rate is the amount of incidents per 100,000 population. Comparing to other Canadian cities it has Average rate in 2020. Year by year change in the total crime rate is -14.94%

Drug crime rate next to the listing MLS® R2996271 is Average comparing to other neighbourhoods. The illegal substances offences rating is 229.49. There were 1,604 illegal substances lawbreaking disturbances in this city in 2020 . Year by year change in the illegal substances offences ranking is 1.58%

Property crimes in the neighbourhood close to real estate listing for sale 1577 E 26th Avenue are Above Average. Property misconduct rating adjacent to MLS® R2996271 is 5,020.27. There were 35,089 in the neighbourhood in 2020. Year by year change in the property misconduct rate is -20.80%

There were 9,168 violent lawbreaking disorders in 2020. 1,311.69 and it is Below Average rate comparing to other BC municipalities. Year by year change in the violent crime rate is 3.53%

The closest Bus station is Westbound E King Edward Ave @ Kingsway in 0.07 km away from this listing with - MLS® R2996271.

19.7% of people with university certificate/degree live in this neighbourhood adjacent to the 1577 E 26th Avenue which is Average in comparison with other BC neighbourhoods. 29% of population in this neighbourhood that is near the Listing MLS® R2996271 have no certificate or degree. This number is High compared to the average in BC.

Median Household Income near this dwelling with the address 1577 E 26th Avenue, Vancouver, BC is $64128 which is Average in comparison with the British Columbia average. Median personal income near this dwelling with listing - MLS® R2996271 is $23930 which is Low in comparison with the BC average. % of the Households with a mortgage in this census subdivision is 50.7% which is Below Average.

Unemployment rate in the area around Real Estate Listing # R2996271 is 6.3 which is Below Average in comparison to the other province neighbourhoods.

This real estate is located in 1577 E 26th Avenue Knight where population change between 2011 and 2016 was 5.2%. This is Above Average in comparison to average growth rate of this region.

Population density per square kilometre in this community near the address 1577 E 26th Avenue, Vancouver, BC is 7755.5 which is High people per sq.km.

Average size of families in the area adjacent to home for sale 1577 E 26th Avenue is 2.9. This is Average number in comparison to the whole region. Percent of families with children near by the Real Estate Listing - MLS® R2996271 is 71.5% and it is High. % of Married or living common law is around 50.9% and it is Below Average.

Average age of the population close to the 1577 E 26th Avenue is 41.1 . This percentage is Average in comparison to other BC cities.

Average value of dwellings in this neighbourhood around 1577 E 26th Avenue, Vancouver, BC is $1227296 and this is High comparing to other areas in British Columbia

Average Owner payments are Above Average in the area adjacent to 1577 E 26th Avenue. $1338 owners spent in average for the dwelling. Tenants are paying $1091 in this district close to MLS® R2996271 and it is Above Average comparing to other cities.

43% of Population in this district near the 1577 E 26th Avenue are Renters and it is Above Average comparing to other BC cities and areas.

% of English and French speakers around real estate listing 1577 E 26th Avenue, Vancouver, BC is 4.7%, it is Below Average, % of English speakers only is 77.7% and Below Average. % of Neither English nor French speakers close to home for sale 1577 E 26th Avenue, Vancouver, BC is 17.6% and it is High comparing to other BC cities.

35.1% of all population in the area around this property with the address 1577 E 26th Avenue, Vancouver, BC using Public Transport which is High, 57.8% of using population are using Cars around MLS® R2996271, which is Low. 2.7% of people using Bicycles around the 1577 E 26th Avenue and it is Above Average. 3.7% of population are walking which is Average

Local Info

Calculate your monthly mortgage payments

/month
Principal & Interest
Property Taxes $202
Maintenance fee 0
All figures are informational estimates by Estateblock.com; actual mortgage payments and insurance rates vary by many factors.

Cash Flow Analysis

/month
Mortgage Payment $3201
Monthly Payment $3802
Break Even Down Payment 0%
All figures are informational estimates by Estateblock.com; actual mortgage payments and insurance rates vary by many factors.

Price Evaluation Chart

Filter
Beds Home Types Square Feet Lot Size Year Built
This Home $1,298,000
Vancouver $1,360,000
Knight No comparables
Data is based on list prices of similar active listings. This representation is based in whole or in part on data generated by the Chilliwack & District Real Estate Board, Fraser Valley Real Estate Board or Real Estate Board of Greater Vancouver which assumes no responsibility for its accuracy

Listing Price Comparision

This house $1,400,000
Surrey

No comparables

Fleetwood Tynehead $1,399,000 -6.38%
Data is based on list prices of similar active listings. This representation is based in whole or in part on data generated by the Chilliwack & District Real Estate Board, Fraser Valley Real Estate Board or Real Estate Board of Greater Vancouver which assumes no responsibility for its accuracy
Dan Marusin
Dan Marusin
Renanza Realty
778-918-5990
Award-Winning REALTOR® with 11+ Years of Experience Serving Greater Vancouver

Earn Cashback

Potential Cashback for this listing if you buy with us

$0
out of $8,489
0 of 17 missions
(0.0% out of 100%)

Login to track your cashback progress

Sign up on Estateblock.com

$424 / 5%

Use the “Hot Deal” module on our website

$170 / 2%

Sign up for our Newsletter

$85 / 1%

Create a saved search on Estateblock.com

$170 / 2%

Book a Property Showing with us

$170 / 2%

Get a mortgage through our recommended broker

$594 / 7%

Use our recommended insurance provider

$170 / 2%

Use our recommended notary for closing

$170 / 2%

Sign an Exclusive Buyer’s Agency Agreement with us

$594 / 7%

Share Estateblock.com on social media with a short intro

$255 / 3%

Refer a friend who successfully buys or sells with us

$2,122 / 25%

Sell your home with us2

$2,122 / 25%

Leave a Public Review in Google

$594 / 7%

Follow us on Insta or FB and tag us in a post

$255 / 3%

Create a short video testimonial after closing

$255 / 3%

Leave a Facebook review on our page

$170 / 2%

Talk with one of our mortgage brokers

$170 / 2%

Similar nearby listings

3838 Inverness Street, Vancouver, BC
$1,485,000

3838 Inverness Street, Vancouver, BC

7 Beds
2 Baths
2230 sqft
1911 built
MLS® R3066211 , RE/MAX City Realty
4313 Miller Street, Vancouver, BC
NEW
$1,360,000

4313 Miller Street, Vancouver, BC

7 Beds
3 Baths
1815 sqft
1910 built
MLS® R3064169 , Sutton Maple Pacific Realty
2318 Macdonald Street, Vancouver, BC
$4,999,000

2318 Macdonald Street, Vancouver, BC

6 Beds
3 Baths
2321 sqft
1912 built
MLS® R2951978 , RE/MAX Select Properties

Similar Sold listings

🔒 Join or Sign In • Real estate boards need a verified account to see photos & sold data

956 E 54th Avenue, Vancouver, BC
Sold
$1,234,500

956 E 54th Avenue, Vancouver, BC

5 Beds
4 Baths
1556 sqft
1912 built
MLS® R3028169 , Royal Pacific Realty Corp.
3875 Laurel Street, Vancouver, BC
Sold
$2,389,000

3875 Laurel Street, Vancouver, BC

5 Beds
3 Baths
2179 sqft
1912 built
MLS® R2905424 , Macdonald Realty
2022 William Street, Vancouver, BC
Sold
$1,380,000

2022 William Street, Vancouver, BC

6 Beds
2 Baths
1899 sqft
1911 built
MLS® R2937968 , Royal Pacific Riverside Realty Ltd.
1232 Victoria Drive, Vancouver, BC
Sold
$1,849,900

1232 Victoria Drive, Vancouver, BC

5 Beds
4 Baths
2906 sqft
1910 built
MLS® R2777725 , Oakwyn Realty Downtown Ltd.
2322 Macdonald Street, Vancouver, BC
Sold
$1,998,000

2322 Macdonald Street, Vancouver, BC

6 Beds
3 Baths
2692 sqft
1912 built
MLS® R2954094 , RE/MAX Crest Realty
374 E 28th Avenue, Vancouver, BC
Sold
$2,249,000

374 E 28th Avenue, Vancouver, BC

5 Beds
4 Baths
2120 sqft
1910 built
MLS® R3010079 , Oakwyn Realty Ltd.
242 E 26th Avenue, Vancouver, BC
Sold
$1,849,900

242 E 26th Avenue, Vancouver, BC

5 Beds
4 Baths
2741 sqft
1905 built
MLS® R3024995 , Royal LePage - Brookside Realty
1115 Lily Street, Vancouver, BC
Sold
$2,399,000

1115 Lily Street, Vancouver, BC

5 Beds
4 Baths
2355 sqft
1911 built
MLS® R2892627 , Oakwyn Realty Ltd. & Oakwyn Realty Ltd. & Oakwyn Realty Ltd.
1921-23 Trafalgar Street, Vancouver, BC
Sold
$2,199,000

1921-23 Trafalgar Street, Vancouver, BC

5 Beds
3 Baths
2388 sqft
1910 built
MLS® R2816414 , RE/MAX Select Properties & RE/MAX Select Properties
4331 Miller Street, Vancouver, BC
Sold
$1,449,900

4331 Miller Street, Vancouver, BC

5 Beds
3 Baths
1650 sqft
1925 built
MLS® R2853393 , Century 21 In Town Realty

Book a tour

Please complete the form. We will the arrangements and give you a call, typically within 1-2 hours. Or Call Us 778-918-5990
Thank you Your message has been sent
Go See This Home Now