2409 1277 Hornby St, Vancouver, BC, MLS® R3030957

$1,019,445
Est. Mortgage /mo

$1,019,445
Est. Mortgage /mo
Dan Marusin
Dan Marusin
Renanza Realty
778-918-5990
Award-Winning REALTOR® with 11+ Years of Experience Serving Greater Vancouver
Go See This Home Now
1 Beds
1 Baths
1 Stories
$ 0.01 Maint. Fee
502 sqft
2026 built
Show more info
Photos
Map
Street view
Schools
Crime
Commute
Shop & Eat

2409 1277 Hornby St, Vancouver, BC | MLS® R3030957 Property Details

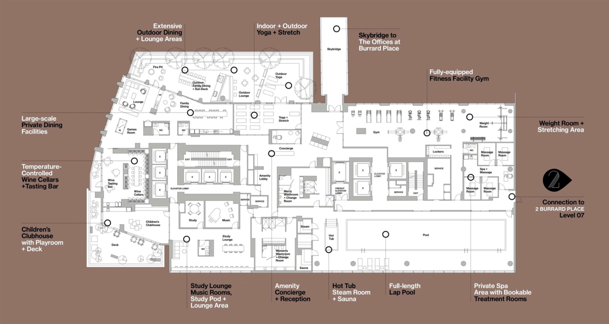
Experience unmatched luxury at 2 Burrard Place. This stunning 1-bedroom home showcases Euroluxe, interiors inspired by global design capitals. Enjoy comfort and design with A/C, wide plank hardwood floors and a sleek MITON Italian kitchen with premium GAGGENAU appliances. Integrated KICO wardrobes and spa inspired bathroom, heated floors and CIELO fixtures add the the elegance. Residents access 30,000 sq. ft. of Club One amenities, including a fitness centre, indoor pool, spa and concierge. Steps from top dining, shopping and entertainment, 2 Burrard Place offers the height of modern sophistication.

General Info

Price $1,019,445
Total Bedrooms 1
Total Bathrooms 1
Half Bathrooms 0
Floor Area Total (sqft) 502
Lot Size -
Lot Size Depth Feet
Lot Size Frontage -
Basement None
Basement Features BasementFeatures

Property Metrics

Year Built 2026
Age Of Building 0
Building Type Apartment/Condo
Property Type Residential
Stories 1
Appliances Included Dishwasher, Refrigerator, Microwave, Oven, Range Top
Building Amenities Clubhouse, Exercise Centre, Sauna/Steam Room, Concierge, Caretaker, Trash, Maintenance Grounds, Gas, Heat, Hot Water, Management, Recreation Facilities, Snow Removal
Building Features BuildingFeatures
Structures Multi Family, Residential Attached

Additional Details

MLS® # R3030957
Area Vancouver West
Neighbourhood Downtown VW
City Vancouver
Gross Taxes 0
Ownership Type Freehold Strata
Maintenance Fee $0.01
Community Features Shopping Nearby
Amenities Nearby Clubhouse, Exercise Centre, Sauna/Steam Room, Concierge, Caretaker, Trash, Maintenance Grounds, Gas, Heat, Hot Water, Management, Recreation Facilities, Snow Removal
Fixtures Included -

Heating & Cooling

Fireplace -
Heating Type Forced Air
Cooling Central Air, Air Conditioning

Utilities

Utility Type Electricity Connected, Water Connected
Utility Sewer Public Sewer, Sanitary Sewer, Storm Sewer
Water (WaterSource) Public

Parking

Parking Type Garage Under Building
Total Parking Spaces 1

🔒 Join or Sign In • Real estate boards need a verified account to see Property data

Strata Restrictions Pets Allowed w/Rest.,Rentals Allwd w/Restrctns
Pet Restrictions Yes With Restrictions
Rental Restrictions -
Zoning CD-1
Rental Suites None
# of Kitchens 1
Flooring Hardwood, Tile
Foundation Concrete Perimeter
Interior Features Elevator
Locker -
View -
View Description -
Units In Development 239
Exterior Features Balcony
Sewer Public Sewer, Sanitary Sewer, Storm Sewer
Roof Other

Property History

🔒 Join or Sign In • Real estate boards need a verified account to see Property data

Status Date Price
Show more

Listed by: Sutton Group Seafair Realty

NOTE: This representation is based in whole or in part on data generated by the Chilliwack & District Real Estate Board, Fraser Valley Real Estate Board or Greater Vancouver REALTORS® which assumes no responsibility for its accuracy.

Neighborhood Info

Public Schools

Secondary
King George Secondary School
1.4 km
Elementary
Elsie Roy Elementary School
Average
0.82 km
6.1/10

Information includes BC Government Open License data; school details change often and are offered solely as general guidance.

Private Schools

Elementary
Anchor Point Montessori
0.17 km
Secondary
Pattison High School
0.43 km

Closest Transit

Bus Stop
Eastbound Davie St @ Burrard St
0.07 km
Skytrain
Skytrain @ Yaletown-Roundhouse Stn
0.66 km

Noise/ Power Lines

Road/Hwy Noise
Possible
Railway/Sky train Noise
Unlikely
Airport/Port Noise
Unlikely
Close to major Power Lines
Unlikely

Other

Agricultural Land Reserve (ALR)
Unlikely
Flood Area
Unlikely
Close to Cemeteries
Unlikely

2409 1277 Hornby Street is serviced by Elsie Roy Elementary School. The property with listing MLS® R3030957 is located 0.82 km from the school. Elsie Roy Elementary School has a rating of Rating 6.1/10.

This home with address 2409 1277 Hornby Street, Vancouver, BC is also serviced by King George Secondary School and located 1.4 km from it. King George Secondary School has a rating of No Rating.

The closest Elementary independent school to this home for sale located at 2409 1277 Hornby Street is Anchor Point Montessori with School's rating No Rating, located 0.17 km from this home.

The closest to this address 2409 1277 Hornby Street Secondary independent school is Pattison High School with School's rating No Rating, located 0.43 km from this home

The freshest crime data from Statistics Canada are from 2020. There were 52,217 volation disturbances in this neighbourhood. The overall crime rate near the address - 2409 1277 Hornby Street, Vancouver, BC is 7,470.82. Rate is the amount of incidents per 100,000 population. Comparing to other Canadian cities it has Average rate in 2020. Year by year change in the total crime rate is -14.94%

Drug crime rate next to the listing MLS® R3030957 is Average comparing to other neighbourhoods. The illegal substances offences rating is 229.49. There were 1,604 illegal substances lawbreaking disturbances in this city in 2020 . Year by year change in the illegal substances offences ranking is 1.58%

Property crimes in the neighbourhood close to real estate listing for sale 2409 1277 Hornby Street are Above Average. Property misconduct rating adjacent to MLS® R3030957 is 5,020.27. There were 35,089 in the neighbourhood in 2020. Year by year change in the property misconduct rate is -20.80%

There were 9,168 violent lawbreaking disorders in 2020. 1,311.69 and it is Below Average rate comparing to other BC municipalities. Year by year change in the violent crime rate is 3.53%

The closest Bus station is Eastbound Davie St @ Burrard St in 0.07 km away from this listing with - MLS® R3030957.

47% of people with university certificate/degree live in this neighbourhood adjacent to the 2409 1277 Hornby Street which is High in comparison with other BC neighbourhoods. 4.8% of population in this neighbourhood that is near the Listing MLS® R3030957 have no certificate or degree. This number is Low compared to the average in BC.

Median Household Income near this dwelling with the address 2409 1277 Hornby Street, Vancouver, BC is $55936 which is Below Average in comparison with the British Columbia average. Median personal income near this dwelling with listing - MLS® R3030957 is $40817 which is Above Average in comparison with the BC average. % of the Households with a mortgage in this census subdivision is 72.8% which is High.

Unemployment rate in the area around Real Estate Listing # R3030957 is 5.9 which is Below Average in comparison to the other province neighbourhoods.

This real estate is located in 2409 1277 Hornby Street Downtown VW where population change between 2011 and 2016 was 40.2%. This is High in comparison to average growth rate of this region.

Population density per square kilometre in this community near the address 2409 1277 Hornby Street, Vancouver, BC is 34624.2 which is High people per sq.km.

Average size of families in the area adjacent to home for sale 2409 1277 Hornby Street is 2.2. This is Low number in comparison to the whole region. Percent of families with children near by the Real Estate Listing - MLS® R3030957 is 24.4% and it is Low. % of Married or living common law is around 39.1% and it is Low.

Average age of the population close to the 2409 1277 Hornby Street is 38.6 . This percentage is Below Average in comparison to other BC cities.

Average value of dwellings in this neighbourhood around 2409 1277 Hornby Street, Vancouver, BC is $705201 and this is High comparing to other areas in British Columbia

Average Owner payments are High in the area adjacent to 2409 1277 Hornby Street. $1746 owners spent in average for the dwelling. Tenants are paying $1369 in this district close to MLS® R3030957 and it is High comparing to other cities.

65.6% of Population in this district near the 2409 1277 Hornby Street are Renters and it is High comparing to other BC cities and areas.

% of English and French speakers around real estate listing 2409 1277 Hornby Street, Vancouver, BC is 12%, it is Above Average, % of English speakers only is 86% and Below Average. % of French speakers adjacent to 2409 1277 Hornby Street only is 0.2% and it is Below Average. % of Neither English nor French speakers close to home for sale 2409 1277 Hornby Street, Vancouver, BC is 1.8% and it is Above Average comparing to other BC cities.

26% of all population in the area around this property with the address 2409 1277 Hornby Street, Vancouver, BC using Public Transport which is High, 27.2% of using population are using Cars around MLS® R3030957, which is Low. 3.2% of people using Bicycles around the 2409 1277 Hornby Street and it is High. 41.7% of population are walking which is High

Local Info

Calculate your monthly mortgage payments

/month
Principal & Interest
Property Taxes $202
Maintenance fee 0
All figures are informational estimates by Estateblock.com; actual mortgage payments and insurance rates vary by many factors.

Cash Flow Analysis

/month
Mortgage Payment $3201
Monthly Payment $3802
Break Even Down Payment 0%
All figures are informational estimates by Estateblock.com; actual mortgage payments and insurance rates vary by many factors.

Price Evaluation Chart

Filter
Beds Home Types Square Feet Lot Size Year Built
This Home $1,019,445
Vancouver $729,444
Downtown VW $810,261
Data is based on list prices of similar active listings. This representation is based in whole or in part on data generated by the Chilliwack & District Real Estate Board, Fraser Valley Real Estate Board or Real Estate Board of Greater Vancouver which assumes no responsibility for its accuracy

Listing Price Comparision

This house $1,400,000
Surrey

No comparables

Fleetwood Tynehead $1,399,000 -6.38%
Data is based on list prices of similar active listings. This representation is based in whole or in part on data generated by the Chilliwack & District Real Estate Board, Fraser Valley Real Estate Board or Real Estate Board of Greater Vancouver which assumes no responsibility for its accuracy
Dan Marusin
Dan Marusin
Renanza Realty
778-918-5990
Award-Winning REALTOR® with 11+ Years of Experience Serving Greater Vancouver

Earn Cashback

Potential Cashback for this listing if you buy with us

$0
out of $6,887
0 of 17 missions
(0.0% out of 100%)

Login to track your cashback progress

Sign up on Estateblock.com

$344 / 5%

Use the “Hot Deal” module on our website

$138 / 2%

Sign up for our Newsletter

$69 / 1%

Create a saved search on Estateblock.com

$138 / 2%

Book a Property Showing with us

$138 / 2%

Get a mortgage through our recommended broker

$482 / 7%

Use our recommended insurance provider

$138 / 2%

Use our recommended notary for closing

$138 / 2%

Sign an Exclusive Buyer’s Agency Agreement with us

$482 / 7%

Share Estateblock.com on social media with a short intro

$207 / 3%

Refer a friend who successfully buys or sells with us

$1,722 / 25%

Sell your home with us2

$1,722 / 25%

Leave a Public Review in Google

$482 / 7%

Follow us on Insta or FB and tag us in a post

$207 / 3%

Create a short video testimonial after closing

$207 / 3%

Leave a Facebook review on our page

$138 / 2%

Talk with one of our mortgage brokers

$138 / 2%

Similar nearby listings

3210 1289 Hornby Street, Vancouver, BC
NEW
$1,249,900

3210 1289 Hornby Street, Vancouver, BC

2 Beds
2 Baths
844 sqft
2022 built
MLS® R3056712 , FaithWilson Christies International Real Estate
308 3668 W 10th Avenue, Vancouver, BC
$1,630,000

308 3668 W 10th Avenue, Vancouver, BC

2 Beds
2 Baths
965 sqft
2025 built
MLS® R3031574 , LDG Realty
1302 1568 Alberni Street, Vancouver, BC
$2,680,000

1302 1568 Alberni Street, Vancouver, BC

2 Beds
2 Baths
1367 sqft
2023 built
MLS® R3020701 , Youlive Realty
2801 680 Seylynn Crescent, North Vancouver, BC
NEW
$1,190,000

2801 680 Seylynn Crescent, North Vancouver, BC

2 Beds
2 Baths
1022 sqft
2018 built
MLS® R3054374 , Rennie & Associates Realty Ltd.
4705 4880 Lougheed Highway, Burnaby, BC
NEW
$672,800

4705 4880 Lougheed Highway, Burnaby, BC

1 Beds
1 Baths
568 sqft
2024 built
MLS® R3057239 , Laboutique Realty
1210 1277 Hornby Street, Vancouver, BC
$1,458,000

1210 1277 Hornby Street, Vancouver, BC

2 Beds
2 Baths
818 sqft
2026 built
MLS® R2988613 , Sunstar Realty Ltd. & Sunstar Realty Ltd.
2608 1277 Hornby Street, Vancouver, BC
$1,499,000

2608 1277 Hornby Street, Vancouver, BC

2 Beds
2 Baths
805 sqft
2026 built
MLS® R3032005 , Initia Real Estate
309 480 W 16th Avenue, Vancouver, BC
NEW
$1,449,900

309 480 W 16th Avenue, Vancouver, BC

2 Beds
2 Baths
772 sqft
2027 built
MLS® R3052588 , Wesgroup Realty Ltd.
1504 1568 Alberni Street, Vancouver, BC
$1,990,000

1504 1568 Alberni Street, Vancouver, BC

2 Beds
2 Baths
900 sqft
2023 built
MLS® R2953652 , VIRANI REAL ESTATE ADVISORS
606 889 Pacific Street, Vancouver, BC
$1,150,000

606 889 Pacific Street, Vancouver, BC

2 Beds
2 Baths
959 sqft
2021 built
MLS® R2993086 , RE/MAX Crest Realty

Similar Sold listings

🔒 Join or Sign In • Real estate boards need a verified account to see photos & sold data

401 1708 Columbia Street, Vancouver, BC
Sold
$608,000

401 1708 Columbia Street, Vancouver, BC

1 Beds
1 Baths
548 sqft
2013 built
MLS® R3016069 , Macdonald Realty
512 1283 Howe Street, Vancouver, BC
Sold
$498,000

512 1283 Howe Street, Vancouver, BC

1 Beds
1 Baths
482 sqft
2019 built
MLS® R2998564 , RE/MAX Masters Realty
322 7828 Granville Street, Vancouver, BC
Sold
$899,000

322 7828 Granville Street, Vancouver, BC

2 Beds
2 Baths
970 sqft
2018 built
MLS® R2992584 , Sutton Group - 1st West Realty
2807 777 Richards Street, Vancouver, BC
Sold
$559,000

2807 777 Richards Street, Vancouver, BC

1 Beds
1 Baths
509 sqft
2016 built
MLS® R3013289 , Nu Stream Realty Inc.
3508 4510 Halifax Way, Burnaby, BC
Sold
$620,000

3508 4510 Halifax Way, Burnaby, BC

1 Beds
1 Baths
532 sqft
2019 built
MLS® R3025431 , Oakwyn Realty Ltd.
203 1409 W Pender Street, Vancouver, BC
Sold
$925,000

203 1409 W Pender Street, Vancouver, BC

2 Beds
2 Baths
824 sqft
2011 built
MLS® R3030087 , Macdonald Realty
201 3333 Main Street, Vancouver, BC
Sold
$799,000

201 3333 Main Street, Vancouver, BC

1 Beds
1 Baths
701 sqft
2011 built
MLS® R3022516 , Macdonald Realty
3102 455 SW Marine Drive, Vancouver, BC
Sold
$649,000

3102 455 SW Marine Drive, Vancouver, BC

1 Beds
1 Baths
485 sqft
2019 built
MLS® R2987865 , RE/MAX Crest Realty
503 1888 Gilmore Avenue, Burnaby, BC
Sold
$519,000

503 1888 Gilmore Avenue, Burnaby, BC

1 Beds
1 Baths
482 sqft
2020 built
MLS® R3037070 , Jovi Realty Inc.
2807 2311 Beta Avenue, Burnaby, BC
Sold
$679,000

2807 2311 Beta Avenue, Burnaby, BC

2 Beds
2 Baths
780 sqft
2021 built
MLS® R3039038 , Regent Park Realty Inc.

Book a tour

Please complete the form. We will the arrangements and give you a call, typically within 1-2 hours. Or Call Us 778-918-5990
Thank you Your message has been sent
Go See This Home Now