Welcome to this well-maintained Vancouver Special !This home offers both comfort and privacy, with thoughtful updates including laminate hardwood flooring throughout.The upper level features 3 spacious bedrooms, a large living room, and a full kitchen, while the lower level offers 3 additional bedrooms, a generous living room, a kitchen, and a separate entrance—perfect for generating excellent rental income/ Recent updates include a gas boiler (2018) and hot water tank (2015). Conveniently situated just minutes from Nanaimo SkyTrain, schools, and parks, and within walking distance to Kingsway’s shops, grocery stores, and restaurants.Added bonus: potential land assembly with neighbouring lots for redevelopment.Open House: Sat, Oct 4th, 2–4 PM.Don’t miss this must-see opportunity !
General Info
Property Metrics
Additional Details
Heating & Cooling
Utilities
Parking
🔒 Join or Sign In • Real estate boards need a verified account to see Property data
Property History
🔒 Join or Sign In • Real estate boards need a verified account to see Property data
| Status | Date | Price |
|---|
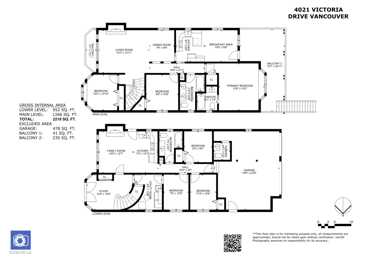
Rooms
| Floor | Type | Dimensions |
|---|---|---|
| Main Level | Living Room | 15'3 x 15'3 ft |
| Main Level | Kitchen | 8'7 x 8'7 ft |
| Main Level | Primary Bedroom | 13'8 x 13'8 ft |
| Main Level | Bedroom | 10'2 x 10'2 ft |
| Main Level | Bedroom | 9'8 x 9'8 ft |
| Main Level | Dining Room | 7'6 x 7'6 ft |
| Main Level | Eating Area | 10'0 x 10'0 ft |
| Below | Family Room | 10'5 x 10'5 ft |
| Below | Kitchen | 7'3 x 7'3 ft |
| Below | Bedroom | 7'6 x 7'6 ft |
| Below | Bedroom | 7'10 x 7'10 ft |
| Below | Bedroom | 8'5 x 8'5 ft |
| Below | Foyer | 13'9 x 13'9 ft |
Bathrooms
| Floor | Ensuite | Pieces |
|---|---|---|
| Main Level | No | #3 |
| Main Level | Yes | #4 |
| Below | No | #4 |
NOTE: This representation is based in whole or in part on data generated by the Chilliwack & District Real Estate Board, Fraser Valley Real Estate Board or Greater Vancouver REALTORS® which assumes no responsibility for its accuracy.
Public Schools
Information includes BC Government Open License data; school details change often and are offered solely as general guidance.
Private Schools
Closest Transit
Noise/ Power Lines
Other
Welcome to 4021 Victoria Drive, a Charming Vancouver Home
Located in the heart of Vancouver, this stunning property is situated at 4021 Victoria Drive, MLS® R3045316. As we step into this beautiful neighborhood, you'll discover a community that offers the perfect blend of urban convenience and natural charm.
Education
When it comes to education, our neighborhood is well-equipped to support students of all ages. Lord Selkirk Elementary School, located just 0.25 km from our property, has a rating of No Rating. Additionally, Gladstone Secondary School, situated 0.29 km away, also has a rating of No Rating. For families who value a strong educational foundation, we're pleased to report that the closest Elementary independent school, St. Joseph's School, has a rating of 8/10 and is located 0.87 km from our home. Meanwhile, the closest Secondary independent school, Stratford Hall School, boasts a rating of 8.7/10 and is situated 0.96 km away.
Safety
Our neighborhood is known for its safety, with a low crime rate compared to other Canadian cities. According to Statistics Canada's 2020 report, there were 52,217 disturbances in our neighborhood, with an overall crime rate of 7,470.82 per 100,000 population. This is Average compared to other neighborhoods. Additionally, the year-by-year change in the total crime rate is -14.94%, indicating a decrease in crime over time.
Demographics
Our neighborhood is home to a diverse population, with 29.7% of residents holding a university certificate or degree, which is Above Average compared to other BC neighborhoods. On the other hand, 21.8% of the population has no certificate or degree, also Above Average compared to the average in BC. The median household income is $72,290, which is Average in comparison to the British Columbia average. Meanwhile, the median personal income is $27,365, which is Below Average in comparison to the BC average.
Lifestyle Amenities
When it comes to lifestyle amenities, our neighborhood has plenty to offer. The closest bus station is Southbound Victoria Dr @ E 22 Ave, located just 0.07 km away from our property. Our neighborhood is also home to a variety of parks, beaches, trails, and dog parks, making it an ideal location for outdoor enthusiasts. For shopping and dining, we're near several popular shopping malls, grocery stores, restaurants, and coffee shops.
Transit
Getting around our neighborhood is easy, thanks to our proximity to public transportation. We're just a short walk from the Southbound Victoria Dr @ E 22 Ave bus station, making it simple to commute to work, school, or other destinations.
Real Estate Context
As we explore the real estate context, we find that the average dwelling value in our neighborhood is $1,263,529, which is High compared to other areas in British Columbia. The average owner payments are also High, at $1,625 per month. Meanwhile, tenants are paying an average of $1,059 per month, which is Average compared to other cities.
Language and Culture
Our neighborhood is a culturally diverse community, with 7.8% of the population speaking both English and French, which is Average. However, 79.3% of residents speak only English, which is Below Average. Meanwhile, 12.8% of the population speaks neither English nor French, which is High compared to other BC cities.
Environmental Sustainability
When it comes to environmental sustainability, our neighborhood is well-equipped to support residents who value a healthy and eco-friendly lifestyle. With a high percentage of residents using public transportation (33.9%) and bicycles (7.8%), our neighborhood is an ideal location for those who prioritize sustainability.
Investment Potential
As an investment opportunity, our neighborhood offers a unique combination of affordability, accessibility, and amenities. With a low unemployment rate of 4.9%, our neighborhood is an attractive location for those looking to invest in real estate.
Community Profile
Our neighborhood is a vibrant and diverse community, with a high percentage of families (68.8%) and a low percentage of married or living common-law residents (51.5%). The average age of the population is 41.1 years, which is Average compared to other BC cities.
Property Details
In conclusion, 4021 Victoria Drive, MLS® R3045316, is a charming Vancouver home that offers a unique blend of urban convenience and natural charm. With its prime location, excellent schools, and diverse community, this property is an ideal choice for families, investors, and anyone looking to experience the best of Vancouver living.
Price Evaluation Chart
Listing Price Comparision
No comparables
Potential Cashback for this listing if you buy with us
Login to track your cashback progress
Sign up on Estateblock.com
$597 / 5%Use the “Hot Deal” module on our website
$239 / 2%Sign up for our Newsletter
$119 / 1%Create a saved search on Estateblock.com
$239 / 2%Book a Property Showing with us
$239 / 2%Get a mortgage through our recommended broker
$836 / 7%Use our recommended insurance provider
$239 / 2%Use our recommended notary for closing
$239 / 2%Sign an Exclusive Buyer’s Agency Agreement with us
$836 / 7%Share Estateblock.com on social media with a short intro
$358 / 3%Refer a friend who successfully buys or sells with us
$2,986 / 25%Sell your home with us2
$2,986 / 25%Leave a Public Review in Google
$836 / 7%Follow us on Insta or FB and tag us in a post
$358 / 3%Create a short video testimonial after closing
$358 / 3%Leave a Facebook review on our page
$239 / 2%Talk with one of our mortgage brokers
$239 / 2%🔒 Join or Sign In • Real estate boards need a verified account to see photos & sold data