550 E 55th Ave, Vancouver, BC, MLS® R3032955

$1,999,900
Est. Mortgage /mo

7.5% price reduction

$1,999,900
$2,161,900
Est. Mortgage /mo
Dan Marusin
Dan Marusin
Renanza Realty
778-918-5990
Award-Winning REALTOR® with 11+ Years of Experience Serving Greater Vancouver
Go See This Home Now
6 Beds
3 Baths
2 Stories
lot 5346 sqft
2926 sqft
1977 built
Show more info
Photos
Map
Street view
Schools
Crime
Commute
Shop & Eat

550 E 55th Ave, Vancouver, BC | MLS® R3032955 Property Details

7.5% price reduction

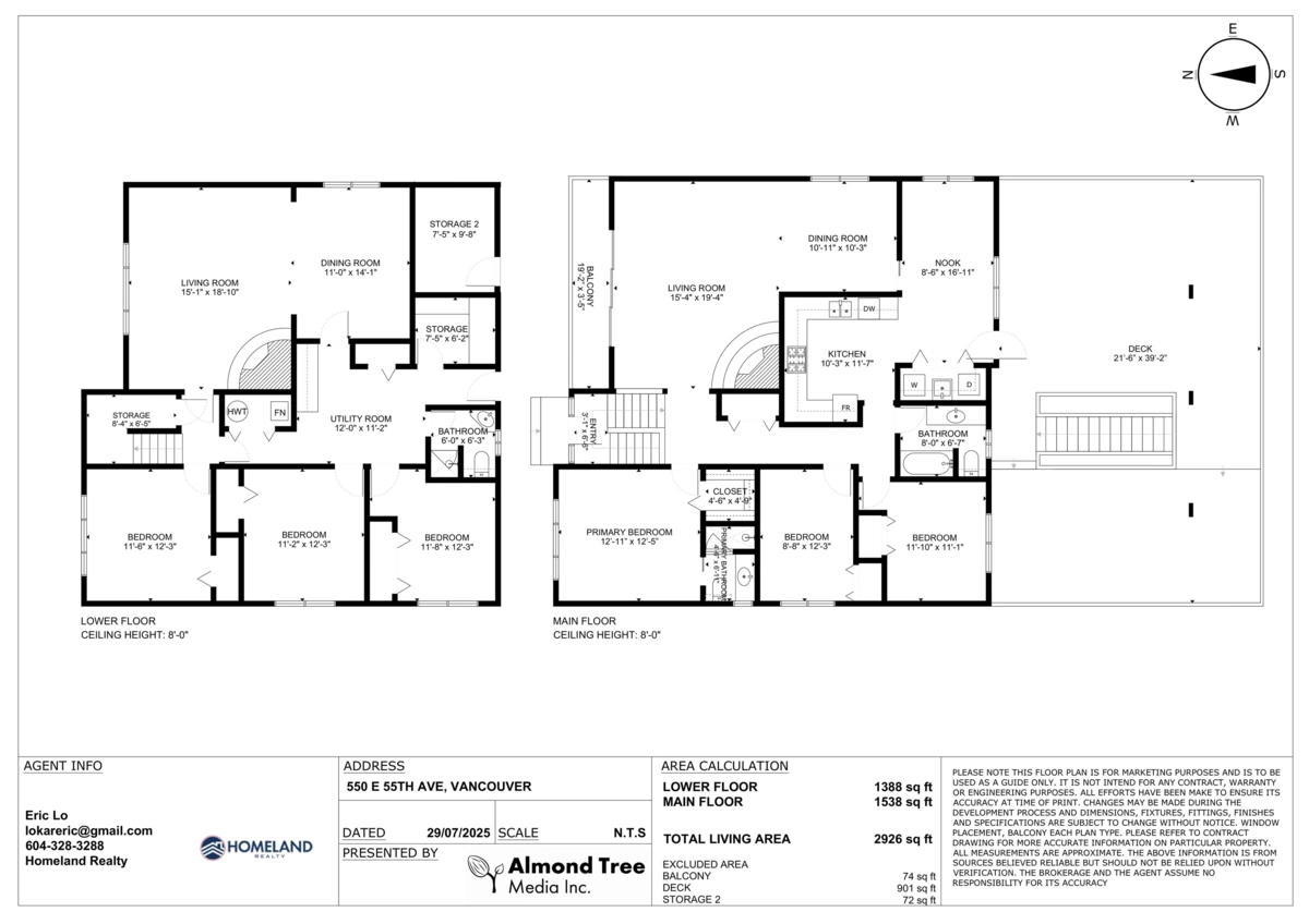
Solid 2926 sq.ft. European built home with 6 bedrooms (each 100 sq.ft. plus) and 3 bathrooms located in South Vancouver on a 49.5x108 lot. Schools, public transportation, community centre, grocery stores and restaurants are just minutes away. This spacious split level home features two unique and beautiful curved stone fireplaces up and down, with a vaulted ceiling made of gorgeous cedar in the living room. Large downstairs rec room is great for multi-use purposes. The large 901 sq. ft. South facing deck, which covers a 3 car carport, is perfect for leisure, entertaining and/or can be a gardener's delight. This home comes with ample storage space, both inside and out. Lots of potential - a must see. Video: https://youtu.be/9s3uyJ5itFo

General Info

Price $1,999,900
Total Bedrooms 6
Total Bathrooms 3
Half Bathrooms 0
Floor Area Total (sqft) 2926
Lot Size 5346
Lot Size Depth Feet
Lot Size Frontage 49.5
Basement Finished, Unfinished
Basement Features BasementFeatures

Property Metrics

Year Built 1977
Age Of Building 48
Building Type Single Family Residence
Property Type Residential
Architecture Style Split Entry
Stories 2
Building Features BuildingFeatures
Structures Residential Detached

Additional Details

MLS® # R3032955
Area Vancouver East
Neighbourhood South Vancouver
City Vancouver
Gross Taxes $9,171.37
Ownership Type Freehold NonStrata
Maintenance Fee -
Community Features Shopping Nearby
Fixtures Included -

Heating & Cooling

Fireplace 2
Heating Type Forced Air

Utilities

Utility Type Electricity Connected, Natural Gas Connected, Water Connected
Utility Sewer Public Sewer
Water (WaterSource) Public

Parking

Parking Type Carport Multiple, Rear Access, Concrete
Total Parking Spaces 3

🔒 Join or Sign In • Real estate boards need a verified account to see Property data

Strata Restrictions -
Rental Restrictions -
Zoning R1-1
Rental Suites None
# of Kitchens 1
Flooring Mixed
Foundation Concrete Perimeter
Locker -
View -
View Description -
Units In Development -
Exterior Features Balcony
Sewer Public Sewer

Property History

🔒 Join or Sign In • Real estate boards need a verified account to see Property data

Status Date Price
Show more

Listed by: Homeland Realty

NOTE: This representation is based in whole or in part on data generated by the Chilliwack & District Real Estate Board, Fraser Valley Real Estate Board or Greater Vancouver REALTORS® which assumes no responsibility for its accuracy.

Neighborhood Info

Public Schools

Secondary
John Oliver Secondary School
1.52 km
Elementary
John Henderson Elementary School
Below Average
0.42 km
2.9/10

Information includes BC Government Open License data; school details change often and are offered solely as general guidance.

Private Schools

Elementary
St. Andrew's
0.92 km
Secondary
Royal Canadian College
2.23 km

Closest Transit

Bus Stop
Southbound Fraser St @ E 55 Ave
0.22 km
Skytrain
Skytrain @ Langara-49Th Stn
1.81 km

Noise/ Power Lines

Road/Hwy Noise
Possible
Railway/Sky train Noise
Unlikely
Airport/Port Noise
Unlikely
Close to major Power Lines
Unlikely

Other

Agricultural Land Reserve (ALR)
Unlikely
Flood Area
Unlikely
Close to Cemeteries
Unlikely

Welcome to this charming neighborhood in Vancouver, BC, where community spirit and outdoor recreation come together in perfect harmony. Let me guide you through the highlights of this fantastic area, which is home to the MLS listing # R3032955 at 550 E 55th Avenue.

Education

We're proud to say that this neighborhood is serviced by John Henderson Elementary School, a highly-rated institution with a 2.9/10 rating, located just 0.42 km from the property with listing MLS# R3032955. This school has earned its reputation for providing an excellent education to its students. Just down the road, you'll also find John Oliver Secondary School, with a No Rating, situated 1.52 km from this home for sale. For those seeking an independent education, St. Andrew's Elementary School is a short 0.92 km away, with a No Rating, while Royal Canadian College Secondary School is 2.23 km from this address, also with a No Rating.

Safety

According to the latest crime data from Statistics Canada (2020), this neighborhood has an average crime rate of 7,470.82, which is typical of urban areas. However, it's essential to note that the overall crime rate has decreased by 14.94% year-over-year. When it comes to specific crimes, the neighborhood has an average rate of drug-related offenses, with 229.49 incidents per 100,000 population. Property crimes are above average, with 5,020.27 incidents per 100,000 population. On a positive note, violent crime rates are below average, with 1,311.69 incidents per 100,000 population.

Lifestyle and Amenities

This neighborhood is a haven for outdoor enthusiasts, with numerous parks, beaches, and trails nearby. You'll find the Southbound Fraser St @ E 55 Ave bus station just 0.22 km away from the property with listing MLS# R3032955, making it an ideal location for commuters. If you're looking for shopping and dining options, this area has plenty to offer, with several grocery stores, restaurants, and coffee shops within walking distance.

Demographics and Real Estate

As of the 2016 census, 28.6% of the population in this neighborhood holds a university certificate or degree, which is above average compared to other BC neighborhoods. On the other hand, 18.7% of the population has no certificate or degree, which is average compared to the rest of the province. The median household income in this area is $63,334, which is average compared to British Columbia. Median personal income is $24,647, which is lower than the BC average. The percentage of households with a mortgage is 42.6%, which is lower than average.

Commuting and Transportation

Unemployment rates in this area are 6.4%, which is below average compared to other BC neighborhoods. Population growth between 2011 and 2016 was -0.5%, which is below average. The population density per square kilometer is 4,207.5, which is high. Average family size in this area is 3, which is above average. The percentage of families with children is 69.8%, which is high. However, the percentage of married or living common law individuals is 54.4%, which is below average.

Real Estate Context

The average value of dwellings in this neighborhood is $1,420,312, which is high compared to other areas in British Columbia. Average owner payments are above average, with $1,550 spent on average for each dwelling. Tenants, on the other hand, pay an average of $1,086 per month. The percentage of renters in this area is 44.4%, which is above average compared to other BC cities.

In conclusion, this neighborhood offers an excellent balance of community spirit, outdoor recreation, and convenient amenities. As a trusted realtor, I'm excited to show you around this fantastic area and answer any questions you may have about the property with listing MLS# R3032955 at 550 E 55th Avenue.

Local Info

Calculate your monthly mortgage payments

/month
Principal & Interest
Property Taxes $202
Maintenance fee 0
All figures are informational estimates by Estateblock.com; actual mortgage payments and insurance rates vary by many factors.

Cash Flow Analysis

/month
Mortgage Payment $3201
Monthly Payment $3802
Break Even Down Payment 0%
All figures are informational estimates by Estateblock.com; actual mortgage payments and insurance rates vary by many factors.

Price Evaluation Chart

Filter
Beds Home Types Square Feet Lot Size Year Built
This Home $1,999,900
Vancouver $2,499,000
South Vancouver No comparables
Data is based on list prices of similar active listings. This representation is based in whole or in part on data generated by the Chilliwack & District Real Estate Board, Fraser Valley Real Estate Board or Real Estate Board of Greater Vancouver which assumes no responsibility for its accuracy

Listing Price Comparision

This house $1,400,000
Surrey

No comparables

Fleetwood Tynehead $1,399,000 -6.38%
Data is based on list prices of similar active listings. This representation is based in whole or in part on data generated by the Chilliwack & District Real Estate Board, Fraser Valley Real Estate Board or Real Estate Board of Greater Vancouver which assumes no responsibility for its accuracy
Dan Marusin
Dan Marusin
Renanza Realty
778-918-5990
Award-Winning REALTOR® with 11+ Years of Experience Serving Greater Vancouver

Earn Cashback

Potential Cashback for this listing if you buy with us

$0
out of $12,524
0 of 17 missions
(0.0% out of 100%)

Login to track your cashback progress

Sign up on Estateblock.com

$626 / 5%

Use the “Hot Deal” module on our website

$250 / 2%

Sign up for our Newsletter

$125 / 1%

Create a saved search on Estateblock.com

$250 / 2%

Book a Property Showing with us

$250 / 2%

Get a mortgage through our recommended broker

$877 / 7%

Use our recommended insurance provider

$250 / 2%

Use our recommended notary for closing

$250 / 2%

Sign an Exclusive Buyer’s Agency Agreement with us

$877 / 7%

Share Estateblock.com on social media with a short intro

$376 / 3%

Refer a friend who successfully buys or sells with us

$3,131 / 25%

Sell your home with us2

$3,131 / 25%

Leave a Public Review in Google

$877 / 7%

Follow us on Insta or FB and tag us in a post

$376 / 3%

Create a short video testimonial after closing

$376 / 3%

Leave a Facebook review on our page

$250 / 2%

Talk with one of our mortgage brokers

$250 / 2%

Similar nearby listings

2698 Ward Street, Vancouver, BC
$2,499,000

2698 Ward Street, Vancouver, BC

6 Beds
3 Baths
2550 sqft
1975 built
MLS® R3013995 , RA Realty Alliance Inc.
4333 Locarno Crescent, Vancouver, BC
$4,380,000

4333 Locarno Crescent, Vancouver, BC

5 Beds
5 Baths
3118 sqft
1990 built
MLS® R3051491 , Nu Stream Realty Inc. & Nu Stream Realty Inc.
4346 Dundas Street, Burnaby, BC
NEW Open House
$2,198,000

4346 Dundas Street, Burnaby, BC

6 Beds
4 Baths
3018 sqft
1974 built
MLS® R3053112 , Sutton Group-West Coast Realty
6788 Chatterton Road, Richmond, BC
$2,388,000

6788 Chatterton Road, Richmond, BC

6 Beds
7 Baths
2889 sqft
1990 built
MLS® R3022925 , Laboutique Realty & Laboutique Realty
368 W 62nd Avenue, Vancouver, BC
$5,500,000

368 W 62nd Avenue, Vancouver, BC

6 Beds
5 Baths
3155 sqft
1991 built
MLS® R2975207 , RE/MAX Real Estate Services
4931 Woodsworth Street, Burnaby, BC
$1,995,000

4931 Woodsworth Street, Burnaby, BC

6 Beds
3 Baths
3122 sqft
1977 built
MLS® R3058034 , RE/MAX Crest Realty & RE/MAX Crest Realty
6440 Livingstone Place, Richmond, BC
$2,290,000

6440 Livingstone Place, Richmond, BC

6 Beds
5 Baths
2852 sqft
1992 built
MLS® R3056399 , RE/MAX Crest Realty
7808 Ross Street, Vancouver, BC
$2,098,000

7808 Ross Street, Vancouver, BC

5 Beds
2 Baths
2308 sqft
1966 built
MLS® R2974815 , Laboutique Realty
3609 Turner Street, Vancouver, BC
$2,088,000

3609 Turner Street, Vancouver, BC

6 Beds
4 Baths
3156 sqft
1987 built
MLS® R3055902 , Nu Stream Realty Inc.
3760 Cunningham Drive, Richmond, BC
NEW Open House
$1,899,000

3760 Cunningham Drive, Richmond, BC

6 Beds
3 Baths
3002 sqft
1989 built
MLS® R3049460 , 1NE Collective Realty Inc.

Similar Sold listings

🔒 Join or Sign In • Real estate boards need a verified account to see photos & sold data

10131 Finlayson Drive, Richmond, BC
Sold
$1,880,000

10131 Finlayson Drive, Richmond, BC

5 Beds
4 Baths
3042 sqft
1992 built
MLS® R2822958 , Dracco Pacific Realty
3659 E 48th Avenue, Vancouver, BC
Sold
$1,980,000

3659 E 48th Avenue, Vancouver, BC

5 Beds
2 Baths
2005 sqft
1964 built
MLS® R2903139 , RE/MAX Crest Realty
5591 Jaskow Drive, Richmond, BC
Sold
$1,699,999

5591 Jaskow Drive, Richmond, BC

4 Beds
3 Baths
2578 sqft
1985 built
MLS® R2974521 , RE/MAX Crest Realty
2659 E 56th Avenue, Vancouver, BC
Sold
$1,998,000

2659 E 56th Avenue, Vancouver, BC

4 Beds
2 Baths
2451 sqft
1962 built
MLS® R2936351 , Angell, Hasman & Associates Realty Ltd. & Angell, Hasman & Associates Realty Ltd.
6026 Martyniuk Place, Richmond, BC
Sold
$1,899,999

6026 Martyniuk Place, Richmond, BC

5 Beds
3 Baths
3093 sqft
1989 built
MLS® R2864702 , Royal Pacific Realty Corp.
6139 Ross Street, Vancouver, BC
Sold
$1,999,991

6139 Ross Street, Vancouver, BC

7 Beds
4 Baths
2712 sqft
1971 built
MLS® R2907865 , Macdonald Realty
2169 E 48th Avenue, Vancouver, BC
Sold
$2,680,000

2169 E 48th Avenue, Vancouver, BC

5 Beds
5 Baths
3093 sqft
1991 built
MLS® R2875433 , Royal Pacific Realty (Kingsway) Ltd.
178 E 40th Avenue, Vancouver, BC
Sold
$2,198,000

178 E 40th Avenue, Vancouver, BC

5 Beds
3 Baths
2521 sqft
1966 built
MLS® R2920603 , RE/MAX Heights Realty
5843 Knight Street, Vancouver, BC
Sold
$2,099,000

5843 Knight Street, Vancouver, BC

5 Beds
2 Baths
2244 sqft
1963 built
MLS® R2738384 , Royal LePage West Real Estate Services & Royal LePage West Real Estate Services
3108 E 62nd Avenue, Vancouver, BC
Sold
$1,999,000

3108 E 62nd Avenue, Vancouver, BC

6 Beds
3 Baths
3162 sqft
1972 built
MLS® R2975706 , RE/MAX City Realty

Book a tour

Please complete the form. We will the arrangements and give you a call, typically within 1-2 hours. Or Call Us 778-918-5990
Thank you Your message has been sent
Go See This Home Now