6 1840 160 St, Surrey, BC, MLS® R3009585

$369,000
Est. Mortgage /mo

5.1% price reduction

$369,000
$389,000
Est. Mortgage /mo
Dan Marusin
Dan Marusin
Renanza Realty
778-918-5990
Award-Winning REALTOR® with 11+ Years of Experience Serving Greater Vancouver
Go See This Home Now
3 Beds
1 Baths
1 Stories
lot 0 sqft
1152 sqft
1975 built
Show more info
Photos
Map
Street view
Schools
Crime
Commute
Shop & Eat

6 1840 160 St, Surrey, BC | MLS® R3009585 Property Details

5.1% price reduction

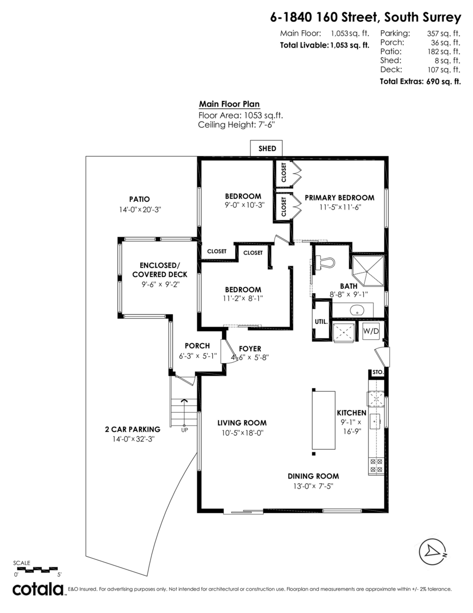
Welcome Home to Breakaway Bays! Fall in love with this gorgeous 3-bedroom, 1-bath Double Wide, full of updates and charm and your very own Catio! Since 2018 — new roof, gutters, hot water tank, windows, doors, brand new kitchen and appliances, flooring, lighting — you name it, it’s done! New covered porch with tons of storage, plus lush gardens in a prime cul-de-sac location! Additional insulation throughout the undercarriage. Your community perks? Outdoor heated pool, clubhouse with library and pool table, loads of activities — all just minutes to the beach, shopping, golf, schools, transit, and the USA border. Seller will pay 6 months pad rental upon closing RV Parking available too! Electricity is included in the pad rent! Don’t miss this rare gem — book your showing today!

General Info

Price $369,000
Total Bedrooms 3
Total Bathrooms 1
Half Bathrooms 0
Floor Area Total (sqft) 1152
Lot Size -
Lot Size Depth Feet
Lot Size Frontage -
Basement None
Basement Features BasementFeatures

Property Metrics

Year Built 1975
Age Of Building 50
Building Type Manufactured Home
Property Type Residential
Stories 1
Appliances Included Washer/Dryer, Dishwasher, Refrigerator, Stove, Microwave
Building Amenities Clubhouse, Exercise Centre, Recreation Facilities, Electricity, Trash, Management, Sewer, Snow Removal
Building Features BuildingFeatures
Structures Residential Detached, Manufactured House

Additional Details

MLS® # R3009585
Area South Surrey White Rock
Neighbourhood King George Corridor
City Surrey
Gross Taxes $1,077.6
Ownership Type Leasehold prepaid-NonStrata
Maintenance Fee -
Community Features Shopping Nearby
Amenities Nearby Clubhouse, Exercise Centre, Recreation Facilities, Electricity, Trash, Management, Sewer, Snow Removal

Heating & Cooling

Fireplace 0
Heating Type Forced Air, Natural Gas

Utilities

Utility Type Electricity Connected, Natural Gas Connected, Water Connected
Utility Sewer Public Sewer
Water (WaterSource) Public

Parking

Parking Type Carport Single, RV Access/Parking, Guest
Total Parking Spaces 2

🔒 Join or Sign In • Real estate boards need a verified account to see Property data

Strata Restrictions Pets Allowed w/Rest.,Rentals Allowed
Pet Restrictions Cats OK, Dogs OK, Number Limit (Two), Yes With Restrictions
Rental Restrictions 100
Zoning MHP
Rental Suites -
Laundry In Unit
# of Kitchens 1
Flooring Laminate, Mixed, Carpet
Foundation Slab
Locker -
View -
View Description -
Units In Development -
Exterior Features Private Yard
Sewer Public Sewer
Roof Torch-On

Property History

🔒 Join or Sign In • Real estate boards need a verified account to see Property data

Status Date Price
Show more

Listed by: Macdonald Realty (Surrey/152)

NOTE: This representation is based in whole or in part on data generated by the Chilliwack & District Real Estate Board, Fraser Valley Real Estate Board or Greater Vancouver REALTORS® which assumes no responsibility for its accuracy.

Neighborhood Info

Public Schools

Elementary
South Meridian Elementary School
Average
1.16 km
6.5/10
Secondary
Earl Marriott Secondary School
0.66 km

Information includes BC Government Open License data; school details change often and are offered solely as general guidance.

Private Schools

Elementary, Secondary
Southridge School
1.61 km
Elementary, Secondary
Southridge School
1.61 km

Closest Transit

Bus Stop
Northbound 160 St @ Park Dr
0.02 km
Skytrain
Skytrain @ Clayton Station ( Under Construction till 2029)
11.26 km

Noise/ Power Lines

Road/Hwy Noise
Possible
Railway/Sky train Noise
Unlikely
Airport/Port Noise
Unlikely
Close to major Power Lines
Unlikely

Other

Agricultural Land Reserve (ALR)
Unlikely
Flood Area
Unlikely
Close to Cemeteries
Unlikely

Welcome to 6 1840 160 Street, a thriving community in Surrey, BC

As we walk through the vibrant streets of Surrey, I'm excited to share with you the many charms of this fantastic neighborhood. Our real estate listing, MLS® R3009585, is nestled in the heart of this desirable area, offering an exceptional blend of convenience, amenities, and lifestyle.

Education

Families with children will appreciate the excellent educational options available in this neighborhood. Our home, located at 6 1840 160 Street, is serviced by South Meridian Elementary School, which boasts a 6.5/10 rating and is within a 1.16 km radius. Additionally, Earl Marriott Secondary School is just 0.66 km away, offering students a comprehensive education. For those seeking independent schooling, Southridge School is a 1.61 km distance, with a stellar 10/10 rating.

Safety

When it comes to safety, this neighborhood excels. According to Statistics Canada's 2020 report, the overall crime rate near our home, MLS® R3009585, is 7,512.73, which is Average compared to other Canadian cities. The rate of volation disturbances is 44,976, and the year-by-year change in the total crime rate is -12.05%. You can enjoy peace of mind knowing that this community prioritizes safety.

Demographics

Our neighborhood is a diverse and vibrant community, with 20.9% of residents holding a university certificate or degree, which is Average compared to other BC neighborhoods. However, 14.6% of the population has no certificate or degree, which is Below Average. The median household income near our home, $80,567, is Above Average in comparison to the British Columbia average.

Lifestyle Amenities

From parks and beaches to shopping malls and restaurants, this neighborhood has it all. The closest Bus station, Northbound 160 St @ Park Dr, is just 0.02 km away from our home, MLS® R3009585. You'll find plenty of opportunities to stay active, enjoy local cuisine, and explore the surrounding area.

Real Estate Context

Our home, MLS® R3009585, is situated in a thriving community with a high average dwelling value of $793,907, which is High compared to other areas in British Columbia. The average owner payments are Average, with owners spending $1,254 per month on their dwellings. Tenants, on the other hand, pay $1,306 per month, which is Above Average.

Community Insights

This neighborhood is a popular choice for families, with 49.2% of households consisting of families with children, which is Below Average. However, the average age of the population is 49.1, which is High in comparison to other BC cities. Unemployment rate is 4.4%, which is Low in comparison to other province neighborhoods.

Getting Around

With a population density of 2,339.7 people per square kilometer, this community is bustling with activity. You'll find that 87.4% of residents use cars, while 7.8% rely on public transport, and 2.1% walk or bike. Our home, MLS® R3009585, is conveniently located near major highways and public transportation hubs.

Experience the Best of Surrey

At 6 1840 160 Street, you'll experience the perfect blend of convenience, amenities, and lifestyle. Whether you're a family, professional, or retiree, this neighborhood has something for everyone. Come and discover the charm of Surrey's King George Corridor, where population growth has been Above Average, with a 6.3% increase between 2011 and 2016.

Make 6 1840 160 Street, Surrey, BC Your Home

If you're looking for a welcoming community with a strong sense of pride and belonging, look no further than 6 1840 160 Street. With its excellent schools, safe environment, and exciting lifestyle amenities, our home, MLS® R3009585, is the perfect place to call home. Contact me today to schedule a viewing and experience the best of Surrey for yourself.

Local Info

Calculate your monthly mortgage payments

/month
Principal & Interest
Property Taxes $202
Maintenance fee 0
All figures are informational estimates by Estateblock.com; actual mortgage payments and insurance rates vary by many factors.

Cash Flow Analysis

/month
Mortgage Payment $3201
Monthly Payment $3802
Break Even Down Payment 0%
All figures are informational estimates by Estateblock.com; actual mortgage payments and insurance rates vary by many factors.

Price Evaluation Chart

Filter
Beds Home Types Square Feet Lot Size Year Built
This Home $369,000
Surrey $321,889
King George Corridor $377,167
Data is based on list prices of similar active listings. This representation is based in whole or in part on data generated by the Chilliwack & District Real Estate Board, Fraser Valley Real Estate Board or Real Estate Board of Greater Vancouver which assumes no responsibility for its accuracy

Listing Price Comparision

This house $1,400,000
Surrey

No comparables

Fleetwood Tynehead $1,399,000 -6.38%
Data is based on list prices of similar active listings. This representation is based in whole or in part on data generated by the Chilliwack & District Real Estate Board, Fraser Valley Real Estate Board or Real Estate Board of Greater Vancouver which assumes no responsibility for its accuracy
Dan Marusin
Dan Marusin
Renanza Realty
778-918-5990
Award-Winning REALTOR® with 11+ Years of Experience Serving Greater Vancouver

Earn Cashback

Potential Cashback for this listing if you buy with us

$0
out of $3,147
0 of 17 missions
(0.0% out of 100%)

Login to track your cashback progress

Sign up on Estateblock.com

$157 / 5%

Use the “Hot Deal” module on our website

$63 / 2%

Sign up for our Newsletter

$31 / 1%

Create a saved search on Estateblock.com

$63 / 2%

Book a Property Showing with us

$63 / 2%

Get a mortgage through our recommended broker

$220 / 7%

Use our recommended insurance provider

$63 / 2%

Use our recommended notary for closing

$63 / 2%

Sign an Exclusive Buyer’s Agency Agreement with us

$220 / 7%

Share Estateblock.com on social media with a short intro

$94 / 3%

Refer a friend who successfully buys or sells with us

$787 / 25%

Sell your home with us2

$787 / 25%

Leave a Public Review in Google

$220 / 7%

Follow us on Insta or FB and tag us in a post

$94 / 3%

Create a short video testimonial after closing

$94 / 3%

Leave a Facebook review on our page

$63 / 2%

Talk with one of our mortgage brokers

$63 / 2%

Similar nearby listings

51 20071 24 Avenue, Langley, BC
$198,000

51 20071 24 Avenue, Langley, BC

2 Beds
1 Baths
694 sqft
1968 built
MLS® R3037518 , Century 21 Creekside Realty (Luckakuck) & Century 21 Creekside Realty (Luckakuck)
5 20071 24 Avenue, Langley, BC
NEW
$549,900

5 20071 24 Avenue, Langley, BC

3 Beds
1 Baths
865 sqft
1973 built
MLS® R3069782 , Angell, Hasman & Associates Realty Ltd. & Angell, Hasman & Associates Realty Ltd.
51 1840 160 Street, Surrey, BC
$459,900

51 1840 160 Street, Surrey, BC

3 Beds
2 Baths
1256 sqft
1973 built
MLS® R3026455 , RE/MAX 2000 Realty
38 20071 24 Avenue, Langley, BC
$214,900

38 20071 24 Avenue, Langley, BC

2 Beds
2 Baths
800 sqft
1968 built
MLS® R2996019 , Century 21 Creekside Realty (Luckakuck) & Century 21 Creekside Realty (Luckakuck)
339 1840 160 Street, Surrey, BC
$439,900

339 1840 160 Street, Surrey, BC

3 Beds
2 Baths
1440 sqft
1980 built
MLS® R3026266 , Royal LePage West Real Estate Services
226 20071 24 Avenue, Langley, BC
$328,000

226 20071 24 Avenue, Langley, BC

3 Beds
2 Baths
1438 sqft
1986 built
MLS® R3062788 , eXp Realty of Canada, Inc.
$409,000

309 1840 160 Street, Surrey, BC

2 Beds
2 Baths
1489 sqft
1978 built
MLS® R3009588 , Macdonald Realty (Surrey/152)
$450,000

96 1840 160 Street Street, Surrey, BC

3 Beds
2 Baths
1564 sqft
1990 built
MLS® R3009587 , Macdonald Realty (Surrey/152)
235 1840 160 Street, Surrey, BC
$179,000

235 1840 160 Street, Surrey, BC

2 Beds
1 Baths
860 sqft
1975 built
MLS® R3052978 , Royal LePage West Real Estate Services
233 1840 160 Street, Surrey, BC
$394,900

233 1840 160 Street, Surrey, BC

2 Beds
2 Baths
1014 sqft
1974 built
MLS® R3023504 , Macdonald Realty (Surrey/152)

Similar Sold listings

🔒 Join or Sign In • Real estate boards need a verified account to see photos & sold data

277 1840 160 Street, Surrey, BC
Sold
$434,900

277 1840 160 Street, Surrey, BC

2 Beds
2 Baths
1280 sqft
1973 built
MLS® R2791929 , Stonehaus Realty Corp. & Stonehaus Realty Corp. & Stonehaus Realty Corp.
42 20071 24 Avenue, Langley, BC
Sold
$194,900

42 20071 24 Avenue, Langley, BC

2 Beds
1 Baths
788 sqft
1968 built
MLS® R2912607 , Century 21 Creekside Realty (Luckakuck) & Century 21 Creekside Realty (Luckakuck)
49 20071 24 Avenue, Langley, BC
Sold
$209,000

49 20071 24 Avenue, Langley, BC

2 Beds
2 Baths
842 sqft
1968 built
MLS® R2935700 , Century 21 Creekside Realty (Luckakuck) & Century 21 Creekside Realty (Luckakuck)
31 1840 160 Street, Surrey, BC
Sold
$210,000

31 1840 160 Street, Surrey, BC

2 Beds
1 Baths
672 sqft
1973 built
MLS® R2852538 , Century 21 Coastal Realty Ltd.
232 1840 160 Street, Surrey, BC
Sold
$265,000

232 1840 160 Street, Surrey, BC

2 Beds
1 Baths
925 sqft
1974 built
MLS® R2863774 , Stonehaus Realty Corp.
317 1840 160 Street, Surrey, BC
Sold
$429,900

317 1840 160 Street, Surrey, BC

2 Beds
2 Baths
1330 sqft
1980 built
MLS® R2990626 , Stonehaus Realty Corp. & Stonehaus Realty Corp.
28 2270 196 Street, Langley, BC
Sold
$374,900

28 2270 196 Street, Langley, BC

2 Beds
2 Baths
1403 sqft
1978 built
MLS® R2930734 , Macdonald Realty (Surrey/152) & Macdonald Realty (Surrey/152)
43A 3031 200 Street, Langley, BC
Sold
$129,800

43A 3031 200 Street, Langley, BC

2 Beds
1 Baths
1164 sqft
1971 built
MLS® R2757211 , Royal LePage West Real Estate Services
41 3031 200 Street, Langley, BC
Sold
$159,900

41 3031 200 Street, Langley, BC

2 Beds
1 Baths
1154 sqft
1972 built
MLS® R2859552 , Homelife Benchmark Realty (Langley) Corp.
51 2270 196 Street, Langley, BC
Sold
$219,900

51 2270 196 Street, Langley, BC

3 Beds
1 Baths
1075 sqft
1983 built
MLS® R3003596 , Macdonald Realty (Surrey/152) & Macdonald Realty (Surrey/152)

Book a tour

Please complete the form. We will the arrangements and give you a call, typically within 1-2 hours. Or Call Us 778-918-5990
Thank you Your message has been sent
Go See This Home Now