671 438 W King Edward Ave, Vancouver, BC, MLS® R3022797

$2,480,000
Est. Mortgage /mo

$2,480,000
Est. Mortgage /mo
Dan Marusin
Dan Marusin
Renanza Realty
778-918-5990
Award-Winning REALTOR® with 11+ Years of Experience Serving Greater Vancouver
Go See This Home Now
2 Beds
2 Baths
1 Stories
$ 1018.67 Maint. Fee
1623 sqft
2019 built
Show more info
Photos
Map
Street view
Schools
Crime
Commute
Shop & Eat

671 438 W King Edward Ave, Vancouver, BC | MLS® R3022797 Property Details

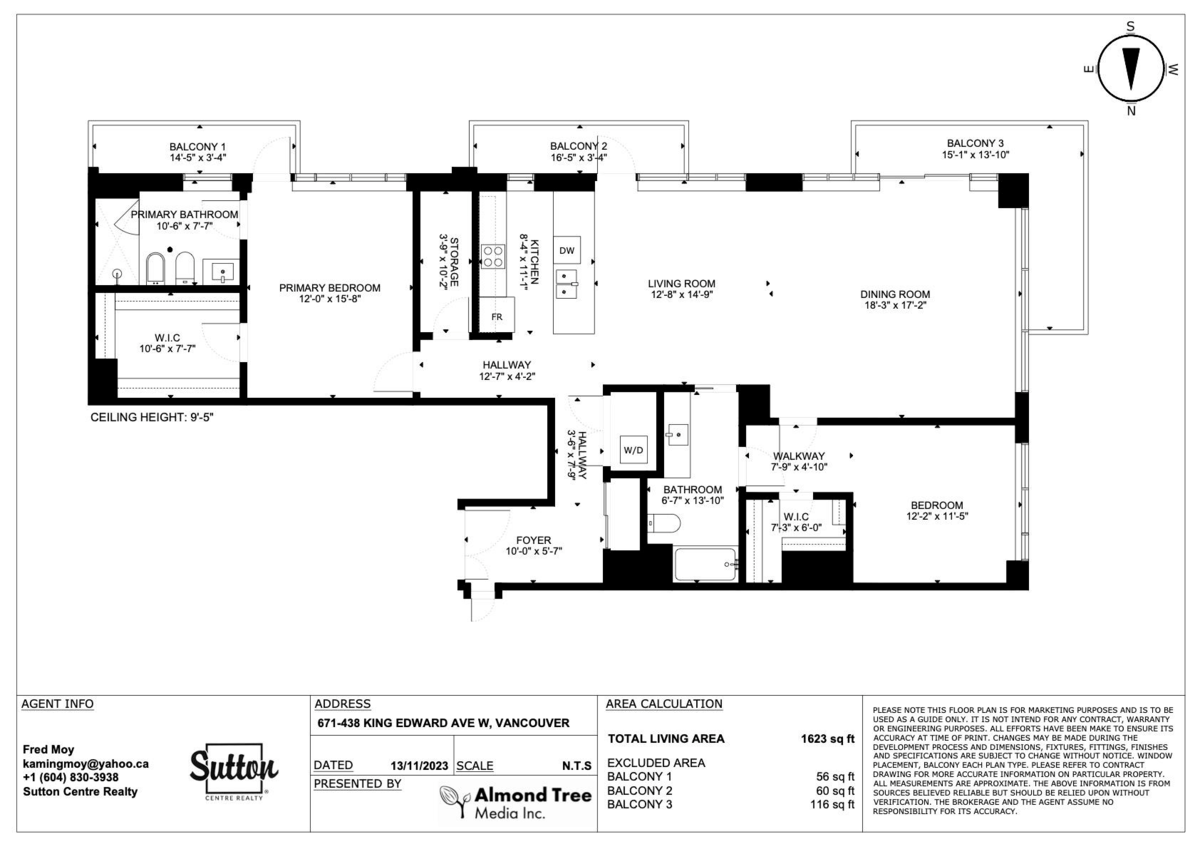
"The Opal" on Vancouver’s West Side offers an exceptional living experience for the discerning 55+ community. This SE corner Penthouse, located on the prime level with only three units and two elevators, spans approx 1623 sqft with a wrap-around balcony. High ceilings and an open-concept kitchen featuring Bosch stainless steel appliances. Spacious unit with many custom-built items paid by the owner prior to the building's completion. Residents can enjoy a rooftop garden, specialized gym, deluxe dining spaces, medical services with nurse & doctor on duty, library lounge, wellness spa & sauna and spacious studios for music, art or game nights. Centrally located, minutes away from QE Park, skytrain station & public transport. Almost one of a kind in Greater Vancouver.

General Info

Price $2,480,000
Total Bedrooms 2
Total Bathrooms 2
Half Bathrooms 0
Floor Area Total (sqft) 1623
Lot Size -
Lot Size Depth -
Lot Size Frontage -
Basement None
Basement Features BasementFeatures

Property Metrics

Year Built 2019
Age Of Building 6
Building Type Apartment/Condo
Property Type Residential
Stories 1
Appliances Included Washer/Dryer, Dishwasher, Refrigerator, Stove
Building Amenities Clubhouse, Exercise Centre, Recreation Facilities, Sauna/Steam Room, Concierge, Cable/Satellite, Caretaker, Trash, Management, Snow Removal, Water
Building Features BuildingFeatures
Structures Multi Family, Residential Attached

Additional Details

MLS® # R3022797
Area Vancouver West
Neighbourhood Cambie
City Vancouver
Gross Taxes $6,437.37
Ownership Type Freehold Strata
Maintenance Fee $1,018.67
Community Features Shopping Nearby
Amenities Nearby Clubhouse, Exercise Centre, Recreation Facilities, Sauna/Steam Room, Concierge, Cable/Satellite, Caretaker, Trash, Management, Snow Removal, Water
Fixtures Included -

Heating & Cooling

Fireplace 0
Heating Type Heat Pump
Cooling Central Air, Air Conditioning

Utilities

Utility Type Community
Utility Sewer Public Sewer
Water (WaterSource) Public

Parking

Parking Type Garage Under Building, Side Access, Concrete
Total Parking Spaces 0

🔒 Join or Sign In • Real estate boards need a verified account to see Property data

Strata Restrictions Age Restrictions,Pets Allowed w/Rest.,Rentals Allwd w/Restrctns,Age Restricted 55+
Pet Restrictions Number Limit (One), Yes With Restrictions
Rental Restrictions -
Zoning CD-1
Rental Suites None
# of Kitchens 1
Flooring Hardwood, Mixed, Tile
Foundation Concrete Perimeter
Interior Features Elevator
Locker -
View 1
View Description City and Mountains view
Units In Development -
Exterior Features Garden, Balcony
Sewer Public Sewer

Property History

🔒 Join or Sign In • Real estate boards need a verified account to see Property data

Status Date Price
Show more

Listed by: Sutton Centre Realty

NOTE: This representation is based in whole or in part on data generated by the Chilliwack & District Real Estate Board, Fraser Valley Real Estate Board or Greater Vancouver REALTORS® which assumes no responsibility for its accuracy.

Neighborhood Info

Public Schools

Elementary
General Wolfe Elementary School
0.58 km

Information includes BC Government Open License data; school details change often and are offered solely as general guidance.

Private Schools

Elementary
Vancouver Talmud Torah Elementary School
0.96 km
Secondary
St.Patrick Regional Secondary School
1.62 km

Closest Transit

Bus Stop
King Edward Station @ Bay 3
0.09 km
Skytrain
Skytrain @ King Edward Stn
0.15 km

Noise/ Power Lines

Road/Hwy Noise
Possible
Railway/Sky train Noise
Unlikely
Airport/Port Noise
Unlikely
Close to major Power Lines
Unlikely

Other

Agricultural Land Reserve (ALR)
Unlikely
Flood Area
Unlikely
Close to Cemeteries
Unlikely

Welcome to 671 438 W King Edward Avenue, a stunning property in the heart of Vancouver, BC!

With its prime location and exceptional amenities, this home is perfect for families and individuals alike. As your trusted realtor, I'm excited to share with you the details of this incredible property, listed as MLS® R3022797.

Education

When it comes to education, this community has plenty to offer. Just down the road from 671 438 W King Edward Avenue, you'll find General Wolfe Elementary School, a highly-rated institution with a rating of No Rating. Although it may not have a formal rating, its reputation speaks for itself. If you're looking for a more independent educational experience, Vancouver Talmud Torah Elementary School is just a short 0.96 km away, with a stellar rating of 9.3/10. For secondary education, St. Patrick Regional Secondary School is approximately 1.62 km from the property, offering a unique blend of academic excellence and community spirit.

Safety and Crime Rates

According to the latest statistics from Statistics Canada (2020), this neighbourhood boasts an average crime rate, with 52,217 incidents reported. This translates to a crime rate of 7,470.82 per 100,000 population, which is Average compared to other Canadian cities. The year-over-year change in crime rate is a significant -14.94%, indicating a stable and secure environment. In terms of specific crime types, drug crime and property crime rates are Average and Above Average, respectively.

Demographics and Lifestyle

This vibrant community is characterized by a diverse population with a high proportion of university-educated individuals (43.1%), making it an ideal location for professionals and families. The median household income is a respectable $89,549, while the median personal income is $37,818. The area is also relatively affordable, with 51.7% of households owning their home, which incidentally is Below Average compared to other BC cities.

Transit and Commuting

Convenience and accessibility are key features of this property, with the King Edward Station @ Bay 3 just 0.09 km away. This makes it an ideal location for those who rely on public transportation or prefer to walk or bike. In fact, 27.7% of the population in this area uses public transport, while 51.1% rely on cars, and 11.5% use bicycles.

Real Estate Context

As for the property itself, the average dwelling value in this neighbourhood is an impressive $1,720,455, making it one of the higher-priced areas in British Columbia. Average owner payments are also High, with owners spending an average of $1,814 per month. Tenants, on the other hand, pay an average of $1,428 per month, which is also High compared to other cities. With 37.9% of the population renting, this area is Above Average in terms of rental demographics.

Community and Amenities

This community offers a unique blend of urban convenience and natural beauty, with nearby parks, beaches, and trails perfect for outdoor enthusiasts. The area is also home to a variety of local shops, restaurants, and cafes, making it an ideal location for those who value community spirit and lifestyle.

In conclusion, 671 438 W King Edward Avenue, Vancouver, BC, MLS® R3022797, is a stunning property situated in one of Vancouver's most desirable neighbourhoods. With its exceptional education options, safety record, and access to amenities, this property is the perfect choice for families and individuals looking for a vibrant and secure community to call home.

Local Info

Calculate your monthly mortgage payments

/month
Principal & Interest
Property Taxes $202
Maintenance fee 0
All figures are informational estimates by Estateblock.com; actual mortgage payments and insurance rates vary by many factors.

Cash Flow Analysis

/month
Mortgage Payment $3201
Monthly Payment $3802
Break Even Down Payment 0%
All figures are informational estimates by Estateblock.com; actual mortgage payments and insurance rates vary by many factors.

Price Evaluation Chart

Filter
Beds Home Types Square Feet Lot Size Year Built
This Home $2,480,000
Vancouver $3,222,667
Cambie No comparables
Data is based on list prices of similar active listings. This representation is based in whole or in part on data generated by the Chilliwack & District Real Estate Board, Fraser Valley Real Estate Board or Real Estate Board of Greater Vancouver which assumes no responsibility for its accuracy

Listing Price Comparision

This house $1,400,000
Surrey

No comparables

Fleetwood Tynehead $1,399,000 -6.38%
Data is based on list prices of similar active listings. This representation is based in whole or in part on data generated by the Chilliwack & District Real Estate Board, Fraser Valley Real Estate Board or Real Estate Board of Greater Vancouver which assumes no responsibility for its accuracy
Dan Marusin
Dan Marusin
Renanza Realty
778-918-5990
Award-Winning REALTOR® with 11+ Years of Experience Serving Greater Vancouver

Earn Cashback

Potential Cashback for this listing if you buy with us

$0
out of $15,285
0 of 17 missions
(0.0% out of 100%)

Login to track your cashback progress

Sign up on Estateblock.com

$764 / 5%

Use the “Hot Deal” module on our website

$306 / 2%

Sign up for our Newsletter

$153 / 1%

Create a saved search on Estateblock.com

$306 / 2%

Book a Property Showing with us

$306 / 2%

Get a mortgage through our recommended broker

$1,070 / 7%

Use our recommended insurance provider

$306 / 2%

Use our recommended notary for closing

$306 / 2%

Sign an Exclusive Buyer’s Agency Agreement with us

$1,070 / 7%

Share Estateblock.com on social media with a short intro

$459 / 3%

Refer a friend who successfully buys or sells with us

$3,821 / 25%

Sell your home with us2

$3,821 / 25%

Leave a Public Review in Google

$1,070 / 7%

Follow us on Insta or FB and tag us in a post

$459 / 3%

Create a short video testimonial after closing

$459 / 3%

Leave a Facebook review on our page

$306 / 2%

Talk with one of our mortgage brokers

$306 / 2%

Similar nearby listings

3210 1289 Hornby Street, Vancouver, BC
NEW
$1,249,900

3210 1289 Hornby Street, Vancouver, BC

2 Beds
2 Baths
844 sqft
2022 built
MLS® R3056712 , FaithWilson Christies International Real Estate
308 3668 W 10th Avenue, Vancouver, BC
$1,630,000

308 3668 W 10th Avenue, Vancouver, BC

2 Beds
2 Baths
965 sqft
2025 built
MLS® R3031574 , LDG Realty
1302 1568 Alberni Street, Vancouver, BC
$2,680,000

1302 1568 Alberni Street, Vancouver, BC

2 Beds
2 Baths
1367 sqft
2023 built
MLS® R3020701 , Youlive Realty
2801 680 Seylynn Crescent, North Vancouver, BC
NEW
$1,190,000

2801 680 Seylynn Crescent, North Vancouver, BC

2 Beds
2 Baths
1022 sqft
2018 built
MLS® R3054374 , Rennie & Associates Realty Ltd.
1210 1277 Hornby Street, Vancouver, BC
$1,458,000

1210 1277 Hornby Street, Vancouver, BC

2 Beds
2 Baths
818 sqft
2026 built
MLS® R2988613 , Sunstar Realty Ltd. & Sunstar Realty Ltd.
2608 1277 Hornby Street, Vancouver, BC
$1,499,000

2608 1277 Hornby Street, Vancouver, BC

2 Beds
2 Baths
805 sqft
2026 built
MLS® R3032005 , Initia Real Estate
309 480 W 16th Avenue, Vancouver, BC
NEW
$1,449,900

309 480 W 16th Avenue, Vancouver, BC

2 Beds
2 Baths
772 sqft
2027 built
MLS® R3052588 , Wesgroup Realty Ltd.
1504 1568 Alberni Street, Vancouver, BC
$1,990,000

1504 1568 Alberni Street, Vancouver, BC

2 Beds
2 Baths
900 sqft
2023 built
MLS® R2953652 , VIRANI REAL ESTATE ADVISORS
606 889 Pacific Street, Vancouver, BC
$1,150,000

606 889 Pacific Street, Vancouver, BC

2 Beds
2 Baths
959 sqft
2021 built
MLS® R2993086 , RE/MAX Crest Realty
606 2268 E Broadway, Vancouver, BC
$1,065,000

606 2268 E Broadway, Vancouver, BC

2 Beds
1 Baths
820 sqft
2025 built
MLS® R3015082 , Engel & Volkers Vancouver

Similar Sold listings

🔒 Join or Sign In • Real estate boards need a verified account to see photos & sold data

538 5311 Cedarbridge Way, Richmond, BC
Sold
$682,800

538 5311 Cedarbridge Way, Richmond, BC

2 Beds
2 Baths
890 sqft
2016 built
MLS® R3050947 , Sutton Group - 1st West Realty
322 7828 Granville Street, Vancouver, BC
Sold
$899,000

322 7828 Granville Street, Vancouver, BC

2 Beds
2 Baths
970 sqft
2018 built
MLS® R2992584 , Sutton Group - 1st West Realty
2201 5113 Garden City Road, Richmond, BC
Sold
$548,000

2201 5113 Garden City Road, Richmond, BC

1 Beds
1 Baths
654 sqft
2004 built
MLS® R3015329 , Regent Park (Supreme) Realty
3007 602 Citadel Parade, Vancouver, BC
Sold
$649,000

3007 602 Citadel Parade, Vancouver, BC

1 Beds
1 Baths
626 sqft
2007 built
MLS® R3048046 , Angell, Hasman & Associates Realty Ltd. & Angell, Hasman & Associates Realty Ltd.
2909 4890 Lougheed Highway, Burnaby, BC
Sold
$849,000

2909 4890 Lougheed Highway, Burnaby, BC

2 Beds
2 Baths
755 sqft
2024 built
MLS® R3022265 , RE/MAX Crest Realty
1905 4360 Beresford Street, Burnaby, BC
Sold
$1,080,000

1905 4360 Beresford Street, Burnaby, BC

2 Beds
2 Baths
1061 sqft
2017 built
MLS® R3028596 , Laboutique Realty & Laboutique Realty
203 1409 W Pender Street, Vancouver, BC
Sold
$925,000

203 1409 W Pender Street, Vancouver, BC

2 Beds
2 Baths
824 sqft
2011 built
MLS® R3030087 , Macdonald Realty
201 3333 Main Street, Vancouver, BC
Sold
$799,000

201 3333 Main Street, Vancouver, BC

1 Beds
1 Baths
701 sqft
2011 built
MLS® R3022516 , Macdonald Realty
104 3289 Riverwalk Avenue, Vancouver, BC
Sold
$848,000

104 3289 Riverwalk Avenue, Vancouver, BC

2 Beds
2 Baths
960 sqft
2018 built
MLS® R3011750 , Macdonald Realty
902 138 E Esplanade, North Vancouver, BC
Sold
$1,108,000

902 138 E Esplanade, North Vancouver, BC

2 Beds
2 Baths
1037 sqft
2007 built
MLS® R3044952 , RE/MAX Crest Realty

Book a tour

Please complete the form. We will the arrangements and give you a call, typically within 1-2 hours. Or Call Us 778-918-5990
Thank you Your message has been sent
Go See This Home Now