1405 227 St, Langley, BC | MLS® R3089638 Property Details
Best small acreage property in Campbell Valley? This could be it- High & Dry! Impressive 4.74 acre property perched atop a rolling hill offers an elevated living experience with bright & airy "big sky" outlook and fantastic 180 degree views over the surrounding area from sunny South all the way North toward North Shore mountains. Custom rancher style house and attached 2400 sqft garage- both are free span structures allowing for wide open space & flexible floor plan options. Huge deck off main living area+ full unfin basement w/ separate access, roughed-in bathroom and easy kitchen potential. The property is partially fenced, featuring pasture areas ideal for animals, complemented by a forest area in the back. 600 sqft workshop & separate Manufactured home with services also included!
General Info
Price
$2,295,000
Total Bedrooms
3
Total Bathrooms
2
Half Bathrooms
0
Floor Area Total (sqft)
1650
Lot Size
4.74
Lot Size Depth
Feet
Lot Size Frontage
333.9895
Basement
Full, Unfinished
Basement Features
BasementFeatures
Property Metrics
Year Built
1989
Age Of Building
37
Building Type
Single Family Residence
Property Type
Residential
Architecture Style
Rancher/Bungalow w/Bsmt.
Stories
2
Appliances Included
Washer/Dryer, Dishwasher, Refrigerator, Stove
Building Features
BuildingFeatures
Structures
Residential Detached
Additional Details
MLS® #
R3089638
Area
Langley
Neighbourhood
Campbell Valley
City
Langley
Gross Taxes
$8,335.73
Ownership Type
Freehold NonStrata
Maintenance Fee
-
Community Features
Shopping Nearby
Heating & Cooling
Fireplace
0
Heating Type
Forced Air, Natural Gas
Utilities
Utility Type
Electricity Connected, Natural Gas Connected
Utility Sewer
Septic Tank
Water (WaterSource)
Well Drilled
Parking
Parking Type
Garage Triple, Open, RV Access/Parking, Front Access, Garage Door Opener
Total Parking Spaces
12
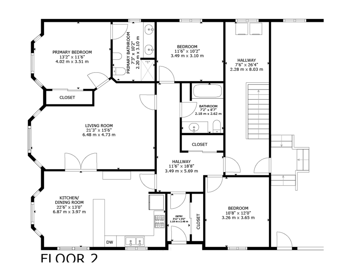
Rooms
Floor
Type
Dimensions
Main Level
Kitchen
13'4 x 13'4 ft
Main Level
Dining Room
13'4 x 13'4 ft
Main Level
Living Room
21' x 21' ft
Main Level
Primary Bedroom
13'4 x 13'4 ft
Main Level
Bedroom
12' x 12' ft
Main Level
Bedroom
11'3 x 11'3 ft
Main Level
Laundry
10' x 10' ft
Basement Level
Other
39' x 39' ft
Bathrooms
Floor
Ensuite
Pieces
Main Level
Yes
#5
Main Level
No
#4
Listed by: 2 Percent Realty West Coast
NOTE: This representation is based in whole or in part on data generated by the Chilliwack & District Real Estate Board, Fraser Valley Real Estate Board or Greater Vancouver REALTORS® which assumes no responsibility for its accuracy.
Neighborhood Info
Public Schools
Elementary
Wix-Brown Elementary School
Average
3.32 km
4.3/10
Information includes BC Government Open License data; school details change often and are offered solely as general guidance.
Private Schools
Elementary
St. Catherines School
6.1 km
Elementary, Secondary
Langley Christian Middle High School
6.8 km
Closest Transit
Bus Stop
Northbound 200 St @ 20 Ave
5.48 km
Skytrain
Skytrain @ Langley City Centre Station ( Under Construction till 2029)
9.91 km
Crime Rate
Total Crime Rate
Average
Violent Crime Rate
Below Average
Property Crime Rate
Above Average
Demographics
Post-Secondary Education
10.5%
No Certificate/Degree
20%
Owner Occupied
55.3%
Employment Rate
49.2%
Noise/ Power Lines
Road/Hwy Noise
Unlikely
Railway/Sky train Noise
Unlikely
Airport/Port Noise
Unlikely
Close to major Power Lines
Unlikely
Other
Agricultural Land Reserve (ALR)
Unlikely
Flood Area
Unlikely
Close to Cemeteries
Unlikely
Local Info
Highlights
Restaurants
Groceries
Nightlife
Cafes
Shopping
Arts & Entertainment
Calculate your monthly mortgage payments
/month
Principal & Interest
Property Taxes$202
Maintenance fee0
All figures are informational estimates by Estateblock.com; actual mortgage payments and insurance rates vary by many factors.
Cash Flow Analysis
/month
Mortgage Payment$3201
Monthly Payment$3802
Break Even Down Payment0%
All figures are informational estimates by Estateblock.com; actual mortgage payments and insurance rates vary by many factors.
Price Evaluation Chart
Filter
This Home
$2,295,000
LangleyNo comparables
Campbell ValleyNo comparables
Data is based on list prices of similar active listings. This representation is based in whole or in part on data generated by the Chilliwack & District Real Estate Board, Fraser Valley Real Estate Board or Real Estate Board of Greater Vancouver which assumes no responsibility for its accuracy
Property FAQs
What are the closest top-rated schools to 1405 227 Street, Langley, BC?
The closest top-rated schools are Wix-Brown Elementary School and St. Catherines School.
Is 1405 227 Street, Langley, BC in a flood zone?
Flood risk status: No.
What is the estimated monthly mortgage and strata fee for 1405 227 Street, Langley, BC?
With a standard down payment, the estimated monthly mortgage is approximately $13,770.
Award-Winning REALTOR® with 11+ Years of Experience Serving Greater Vancouver
Claim Your Rebate
Attach at least one supporting item (image, video, document, or URL) to verify your rebate action.
This helps us confirm your eligibility and process your rebate quickly.