1801 188 Agnes St, New Westminster, BC, MLS® R3091801

$918,000
Est. Mortgage /mo

$918,000
Est. Mortgage /mo
Dan Marusin
Dan Marusin
Renanza Realty
778-918-5990
Award-Winning REALTOR® with 11+ Years of Experience Serving Greater Vancouver
Go See This Home Now
2 Beds
2 Baths
1 Stories
$ 673.56 Maint. Fee
1154 sqft
2017 built
Show more info
Photos
Map
Street view
Schools
Crime
Commute
Shop & Eat

1801 188 Agnes St, New Westminster, BC | MLS® R3091801 Property Details

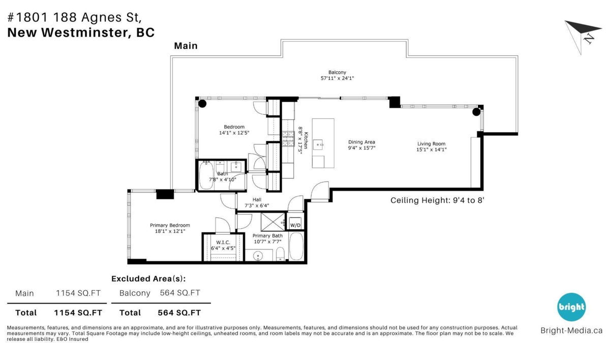
Stunning sub-penthouse high above downtown New West, this corner unit at Elliot Street offers panoramic views from the North Shore mountains, to the Fraser River & Mt Baker. Huge wrap around semi-covered patio, great for entertaining, over 300sf, enjoy morning sunsets & north, east & south facing views! Open floor plan, 1,154sf of living space, with 2 bedrooms, 2 bathrooms, open-concept living/dining/kitchen area with 10’ ceilings, large kitchen w/ island, high-end European appliances, gas range, and modern cabinetry. Located on the east side of Downtown New West, backing onto Albert Crescent park, tucked away from city noise and a close walk to Columbia Skytrain, Restaurants, Shopping and Pier Park. Includes 1 parking & 1 storage.

General Info

Price $899,000
Total Bedrooms 2
Total Bathrooms 2
Half Bathrooms 0
Floor Area Total (sqft) 1154
Lot Size -
Lot Size Depth -
Lot Size Frontage -
Basement None
Basement Features BasementFeatures

Property Metrics

Year Built 2017
Age Of Building 9
Building Type Apartment/Condo
Property Type Residential
Architecture Style Penthouse
Stories 1
Appliances Included Washer/Dryer, Dishwasher, Refrigerator, Stove
Building Amenities Exercise Centre, Trash, Maintenance Grounds, Gas, Hot Water, Management, Recreation Facilities, Snow Removal
Building Features BuildingFeatures
Structures Multi Family, Residential Attached

Additional Details

MLS® # R3091801
Area New Westminster
Neighbourhood Downtown NW
City New Westminster
Gross Taxes $4,061.05
Ownership Type Freehold Strata
Maintenance Fee $673.56
Community Features Shopping Nearby
Amenities Nearby Exercise Centre, Trash, Maintenance Grounds, Gas, Hot Water, Management, Recreation Facilities, Snow Removal
Fixtures Included -

Heating & Cooling

Fireplace 1
Heating Type Baseboard, Electric

Utilities

Utility Type Community
Utility Sewer Public Sewer
Water (WaterSource) Public

Parking

Parking Type Underground
Total Parking Spaces 1

Listed by: Oakwyn Realty Ltd. & Oakwyn Realty Ltd.

NOTE: This representation is based in whole or in part on data generated by the Chilliwack & District Real Estate Board, Fraser Valley Real Estate Board or Greater Vancouver REALTORS® which assumes no responsibility for its accuracy.

Neighborhood Info

Public Schools

Elementary
École Qayqayt Elementary
Above Average
0.18 km
7.2/10
Middle
Fraser River Middle School
1.1 km

Information includes BC Government Open License data; school details change often and are offered solely as general guidance.

Private Schools

Elementary, Secondary
Urban Academy
0.31 km
Elementary, Secondary
Urban Academy
0.31 km

Closest Transit

Bus Stop
Eastbound Agnes St @ Elliot St
0.04 km
Skytrain
Skytrain @ Columbia Stn
0.42 km

Crime Rate

Total Crime Rate
Average
Violent Crime Rate
Average
Property Crime Rate
Average

Demographics

Post-Secondary Education
28.2%
No Certificate/Degree
9.8%
Owner Occupied
80%
Employment Rate
39.1%

Noise/ Power Lines

Road/Hwy Noise
Possible
Railway/Sky train Noise
Unlikely
Airport/Port Noise
Unlikely
Close to major Power Lines
Unlikely

Other

Agricultural Land Reserve (ALR)
Unlikely
Flood Area
Unlikely
Close to Cemeteries
Unlikely

Local Info

Calculate your monthly mortgage payments

/month
Principal & Interest
Property Taxes $202
Maintenance fee 0
All figures are informational estimates by Estateblock.com; actual mortgage payments and insurance rates vary by many factors.

Cash Flow Analysis

/month
Mortgage Payment $3201
Monthly Payment $3802
Break Even Down Payment 0%
All figures are informational estimates by Estateblock.com; actual mortgage payments and insurance rates vary by many factors.

Price Evaluation Chart

Filter
Beds Home Types Square Feet Lot Size Year Built
This Home $918,000
New Westminster $783,397
Downtown NW No comparables
Data is based on list prices of similar active listings. This representation is based in whole or in part on data generated by the Chilliwack & District Real Estate Board, Fraser Valley Real Estate Board or Real Estate Board of Greater Vancouver which assumes no responsibility for its accuracy

Property FAQs

What are the closest top-rated schools to 1801 188 Agnes Street, New Westminster, BC?

Is 1801 188 Agnes Street, New Westminster, BC in a flood zone?

What is the estimated monthly mortgage and strata fee for 1801 188 Agnes Street, New Westminster, BC?

Dan Marusin
Dan Marusin
Renanza Realty
778-918-5990
Award-Winning REALTOR® with 11+ Years of Experience Serving Greater Vancouver

Buy with us & save on this property

Book a tour

Please complete the form. We will the arrangements and give you a call, typically within 1-2 hours. Or Call Us 778-918-5990
Thank you Your message has been sent
Go See This Home Now