54 9111 No. 5 Rd, Richmond, BC, MLS® R3095777

$768,000
Est. Mortgage /mo

NEW

$768,000
Est. Mortgage /mo
Dan Marusin
Dan Marusin
Renanza Realty
778-918-5990
Award-Winning REALTOR® with 11+ Years of Experience Serving Greater Vancouver
Go See This Home Now
3 Beds
2 Baths
2 Stories
$ 543.48 Maint. Fee
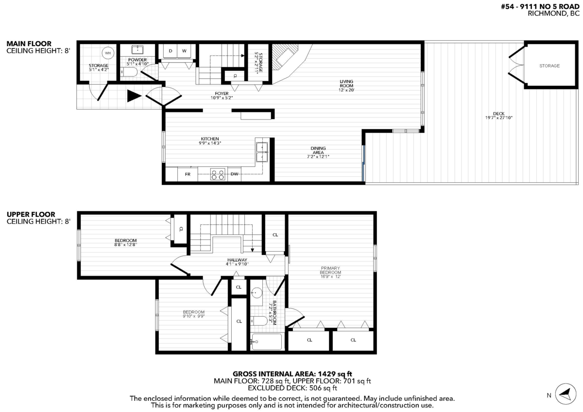
1429 sqft
1975 built
Show more info
Photos
Map
Street view
Schools
Crime
Commute
Shop & Eat

54 9111 No. 5 Rd, Richmond, BC | MLS® R3095777 Property Details

Welcome to Kingswood Downe, where comfort meets convenience. This rarely available townhouse is highly sought after, featuring updates throughout the entire unit, just move in and enjoy! Spanning over 1,400sf, there is an abundance of space, boasting ample natural sunlight with an expansive south facing patio perfect for enjoying your morning coffee, entertaining guests, or relaxing! This unit includes smart compatible lighting, updated flooring, updated bathrooms, updated kitchen with quartz countertops, new living room windows, new hot water tank, and a custom built patio. Amenities include an indoor swimming pool, hot tub, gym, and residents lounge. Located only minutes from Ironwood Plaza, Kingswood Elementary, and Entertainment Boulevard, you don't want to miss out! OH Sat&Sun 2-4pm

General Info

Price $768,000
Total Bedrooms 3
Total Bathrooms 1
Half Bathrooms 1
Floor Area Total (sqft) 1429
Lot Size -
Lot Size Depth -
Lot Size Frontage -
Basement None
Basement Features BasementFeatures

Property Metrics

Year Built 1975
Age Of Building 51
Building Type Townhouse
Property Type Residential
Stories 2
Appliances Included Washer/Dryer, Dishwasher, Refrigerator, Stove
Building Amenities Exercise Centre, Sauna/Steam Room, Maintenance Grounds, Management, Recreation Facilities
Building Features BuildingFeatures
Structures Residential Attached

Additional Details

MLS® # R3095777
Area Richmond
Neighbourhood Ironwood
City Richmond
Gross Taxes $2,713.39
Ownership Type Freehold Strata
Maintenance Fee $543.48
Community Features Shopping Nearby
Amenities Nearby Exercise Centre, Sauna/Steam Room, Maintenance Grounds, Management, Recreation Facilities
Fixtures Included -

Heating & Cooling

Fireplace 1
Heating Type Baseboard, Electric, Wood

Utilities

Utility Type Electricity Connected, Water Connected
Water (WaterSource) Public

Parking

Parking Type Carport Multiple, Front Access
Total Parking Spaces 2

Listed by: Real Broker

NOTE: This representation is based in whole or in part on data generated by the Chilliwack & District Real Estate Board, Fraser Valley Real Estate Board or Greater Vancouver REALTORS® which assumes no responsibility for its accuracy.

Neighborhood Info

Public Schools

Elementary
Kingswood Elementary School
Average
0.26 km
6.8/10
Secondary
Matthew McNair Secondary School
1.57 km
Elementary
Kingswood Elementary School
0.26 km

Information includes BC Government Open License data; school details change often and are offered solely as general guidance.

Private Schools

Elementary
Richmond Jewish Day School
0.23 km
Elementary, Secondary
Richmond Christian School
1.08 km

Closest Transit

Bus Stop
Southbound No. 5 Rd @ Kingsbridge Dr
0.13 km
Skytrain
Skytrain @ Brighouse Stn
3.82 km

Crime Rate

Total Crime Rate
Average
Violent Crime Rate
Low
Property Crime Rate
Average

Demographics

Post-Secondary Education
25.9%
No Certificate/Degree
16.6%
Owner Occupied
59.6%
Employment Rate
68.8%

Noise/ Power Lines

Road/Hwy Noise
Possible
Railway/Sky train Noise
Unlikely
Airport/Port Noise
Unlikely
Close to major Power Lines
Unlikely

Other

Agricultural Land Reserve (ALR)
Unlikely
Flood Area
Unlikely
Close to Cemeteries
Unlikely

Local Info

Calculate your monthly mortgage payments

/month
Principal & Interest
Property Taxes $202
Maintenance fee 0
All figures are informational estimates by Estateblock.com; actual mortgage payments and insurance rates vary by many factors.

Cash Flow Analysis

/month
Mortgage Payment $3201
Monthly Payment $3802
Break Even Down Payment 0%
All figures are informational estimates by Estateblock.com; actual mortgage payments and insurance rates vary by many factors.

Price Evaluation Chart

Filter
Beds Home Types Square Feet Lot Size Year Built
This Home $768,000
Richmond $891,988
Ironwood $797,444
Data is based on list prices of similar active listings. This representation is based in whole or in part on data generated by the Chilliwack & District Real Estate Board, Fraser Valley Real Estate Board or Real Estate Board of Greater Vancouver which assumes no responsibility for its accuracy

Property FAQs

What are the closest top-rated schools to 54 9111 No. 5 Road, Richmond, BC?

Is 54 9111 No. 5 Road, Richmond, BC in a flood zone?

What is the estimated monthly mortgage and strata fee for 54 9111 No. 5 Road, Richmond, BC?

Dan Marusin
Dan Marusin
Renanza Realty
778-918-5990
Award-Winning REALTOR® with 11+ Years of Experience Serving Greater Vancouver

Buy with us & save on this property

Book a tour

Please complete the form. We will the arrangements and give you a call, typically within 1-2 hours. Or Call Us 778-918-5990
Thank you Your message has been sent
Go See This Home Now